turku > 
7816

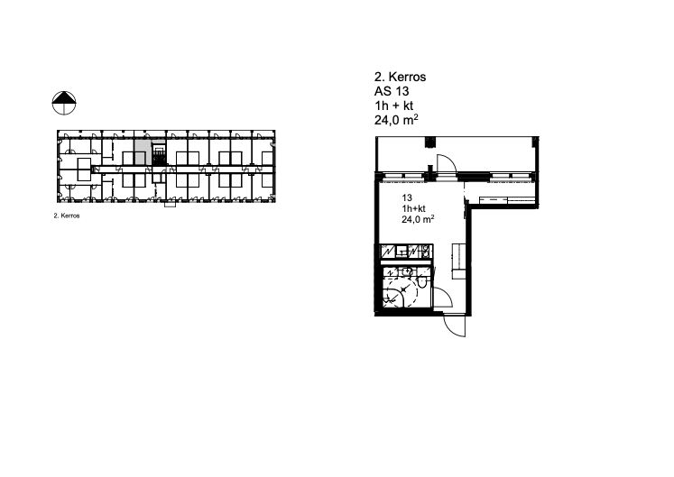
Elin Sågerin kuja 1 A 13

1h+k+kph+l.parv
Rent €
549/month
Area
24 m²
Floor
2/6
Year of construction
2022
Available from
Not available
Deposit €
0
Kaunis ja valoisa yksiö lasitetulla parvekkeella modernista taloyhtiöstä

Herttuankulmassa nautit huolettomasta uudiskohdealueesta Turun keskustan kupeessa

Turku on Suomen vanhin kaupunki, jossa riittää historiallisia nähtävyyksiä ja modernia kaupunkikulttuuria. Kotisi sijaitsee sopivalla etäisyydellä ydinkeskustasta, sillä sinun ei tarvitse valita oman rauhan ja palveluiden välillä - meiltä saat molemmat. Läheltäsi löytyvät muun muassa Turun linna, satama ja Ruissalon merelliset maisemat. Parin kilometrin matka keskustaan taittuu nopeasti pyörällä tai bussilla.

Joo Kotien asukkaana nautit myös näistä eduista:

  • Vakuus 0 EUR
  • Lemmikit ovat tervetulleita
  • Joo-tiimi ja kotimestari on aina apunasi
  • Jooppi-asukassovelluksella hoidat helposti kaikki kotisi asiat
  • Taloyhtiössä yhteiskäyttöauto

Taloyhtiö sijaitsee energisellä ja kasvavalla Herttuankulman alueella. Taloyhtiössä on 6 kerrosta ja asuntojen koot vaihtelevat 24m2- 62,5m2. Moderni taloyhtiö sijaitsee sataman lähellä, noin kilometrin päässä Turun Linnasta. Turun keskustan palveluihin on matkaa vajaa kolme kilometriä, bussilla matka kestää noin kymmenen minuuttia. Sujuva julkinen liikenne sekä lyhyet etäisyydet palvelujen äärelle tekevät arjestasi huoletonta.

Modernit ja raikkaat sisustusvalinnat

Kurkkaathan asunnon esittelyn videot kohdasta!

Vuonna 2022 valmistuneessa kerrostalokodissa on ihanat suuret ikkunat, miellyttävät laminaatti lattiat ja valkoisiksi maalatut seinät luovat kauniin pohjan sisustuksellesi. Tässä asunnossa on toimiva pohjaratkaisu, jonka ansiosta saat mahtumaan kotiisi kaiken tarvittavan.

Arkea sujuvoittavat keittotilan laadukkaat integroidut kodinkoneet, joihin lukeutuvat induktio liesi, astianpesukone, mikro yhdistelmäuuni ja jääkaappi pakastinlokerolla. Laatoitetussa kylpyhuoneessa on liitäntä asukkaan omalle, enintään 60 cm leveälle pyykinpesukoneelle. Asuntojen lämmityksenä on termostaatein ohjattu vesikiertoinen lattialämmitys, joka on liitetty kaukolämpöverkostoon. Kylpyhuoneessa varpaat pysyvät lämpöisenä sähköisen asukkaan itse säädettävän ”mukavuuslämmön” avulla.

Taloyhtiössä monipuoliset palvelut Joo Work tilasta yhteiskäyttöautoon

  • Ulkoiluvälinevarasto
  • Irtaimistovarastot
  • Yhteiskäyttöauto
  • 100M Telian taloyhtiön laajakaista
  • Digitaalinen iLOQ-avain
  • Taloyhtiö on esteetön ja savuton
  • iBoxen

Auto käyttöön omalta kotipihalta? Joo'o. Tässä taloyhtiössä on yhteiskäyttöauto, jolla kuljetat isommat ostokset kotiin, hurautat harrastuksiin tai reissaat viikonlopun viettoon edulliseen hintaan. Perheen pienimpien päiväkotimatkaan ei autoa tarvita, sillä päiväkoti sijaitsee kotitalon sisäpihalla.

Kotipihallasi on iBoxen-pakettiautomaatti, josta voit noutaa Matkahuollon kuljettamia verkkokauppaostoksia ja muita Matkahuollon kuljettamia paketteja kätevästi vuorokauden ympäri. Voit myös lähettää paketteja kaikkialle Suomeen Matkahuollon palvelupisteisiin sekä ulkomaille. Pääset käyttämään iBoxenia, kun lataat itsellesi Matkahuolto Paketit -sovelluksen laitteesi sovelluskaupasta.

Taloyhtiössä autohallipaikkoja 70 €/kk. Kysy autopaikkojen saatavuus erikseen asunnon vuokraajalta.

Vuokrasopimuksen ehdot

Vuokrasopimus on toistaiseksi voimassa oleva. Sopimuksen ensimmäinen mahdollinen päättymispäivä on 12 kuukauden kuluttua. Edellytämme puhtaita luottotietoja. Laaja kotivakuutus vastuuosineen vaaditaan. Asukas tekee oman sähkösopimuksen valitsemansa sähköyhtiön kanssa.

Olisiko tässä uusi kotisi?

Varaa asunto itsellesi klikkaamalla “Vuokraa asunto“ ja muuta uuteen huolettomaan kotiisi! Varausta tehdessä voit kertoa meille, haluatko käydä asuntonäytöllä ennen vuokrasopimuksen allekirjoittamista. Olemme sinuun yhteydessä mahdollisimman pian varauksesi vastaanottamisen jälkeen.


Ensimmäisen kuukauden vuokra -50 %


Tässä kodissa ensimmäinen vuokra on –50 %, kun sopimuksesi alkaa viimeistään 1.3.2026.


Herttuankulmassa nautit huolettomasta uudiskohdealueesta Turun keskustan kupeessa


Turku on Suomen vanhin kaupunki, jossa riittää historiallisia nähtävyyksiä ja modernia kaupunkikulttuuria. Kotisi sijaitsee sopivalla etäisyydellä ydinkeskustasta, sillä sinun ei tarvitse valita oman rauhan ja palveluiden välillä - meiltä saat molemmat. Läheltäsi löytyvät muun muassa Turun linna, satama ja Ruissalon merelliset maisemat. Parin kilometrin matka keskustaan taittuu nopeasti pyörällä tai bussilla.


Joo Kotien asukkaana nautit myös näistä eduista:


- Vakuus 0 EUR

- Lemmikit ovat tervetulleita

- Joo-tiimi on aina apunasi

- Jooppi-asukassovelluksella hoidat helposti kaikki kotisi asiat

- Taloyhtiössä yhteiskäyttöauto


Taloyhtiö sijaitsee energisellä ja kasvavalla Herttuankulman alueella.

Taloyhtiössä on 6 kerrosta ja asuntojen koot vaihtelevat 24m2- 62,5m2.

Moderni taloyhtiö sijaitsee sataman lähellä, noin kilometrin päässä Turun Linnasta. Turun keskustan palveluihin on matkaa vajaa kolme kilometriä, bussilla matka kestää noin kymmenen minuuttia.

Sujuva julkinen liikenne sekä lyhyet etäisyydet palvelujen äärelle tekevät arjestasi huoletonta.


Modernit ja raikkaat sisustusvalinnat


Vuonna 2022 valmistuneessa kerrostalokodissa on ihanat suuret ikkunat, miellyttävät laminaatti lattiat ja valkoisiksi maalatut seinät luovat kauniin pohjan sisustuksellesi. Tässä asunnossa on toimiva pohjaratkaisu, jonka ansiosta saat mahtumaan kotiisi kaiken tarvittavan.


Arkea sujuvoittavat keittotilan laadukkaat integroidut kodinkoneet, joihin lukeutuvat induktio liesi, astianpesukone, mikro yhdistelmäuuni ja jääkaappi pakastinlokerolla.

Laatoitetussa kylpyhuoneessa on liitäntä asukkaan omalle, enintään 60 cm leveälle pyykinpesukoneelle. Asuntojen lämmityksenä on termostaatein ohjattu vesikiertoinen lattialämmitys, joka on liitetty kaukolämpöverkostoon. Kylpyhuoneessa varpaat pysyvät lämpöisenä sähköisen asukkaan itse säädettävän ”mukavuuslämmön” avulla.



Taloyhtiössä monipuoliset palvelut Joo Work tilasta yhteiskäyttöautoon


- Ulkoiluvälinevarasto

- Irtaimistovarastot

- Yhteiskäyttöauto

- 100M Telian taloyhtiön laajakaista

- Digitaalinen iLOQ-avain

- Taloyhtiö on esteetön ja savuton

- iBoxen


Auto käyttöön omalta kotipihalta? Joo'o. Tässä taloyhtiössä on yhteiskäyttöauto, jolla kuljetat isommat ostokset kotiin, hurautat harrastuksiin tai reissaat viikonlopun viettoon edulliseen hintaan. Perheen pienimpien päiväkotimatkaan ei autoa tarvita, sillä päiväkoti sijaitsee kotitalon sisäpihalla.


Kotipihallasi on iBoxen-pakettiautomaatti, josta voit noutaa Matkahuollon kuljettamia verkkokauppaostoksia ja muita Matkahuollon kuljettamia paketteja kätevästi vuorokauden ympäri. Voit myös lähettää paketteja kaikkialle Suomeen Matkahuollon palvelupisteisiin sekä ulkomaille. Pääset käyttämään iBoxenia, kun lataat itsellesi Matkahuolto Paketit -sovelluksen laitteesi sovelluskaupasta.


Taloyhtiössä autohallipaikkoja 70 €/kk.

Kysy autopaikkojen saatavuus erikseen asunnon vuokraajalta.


Vuokrasopimuksen ehdot


Vuokrasopimus on toistaiseksi voimassa oleva. Sopimuksen ensimmäinen mahdollinen päättymispäivä on 12 kuukauden kuluttua. Edellytämme puhtaita luottotietoja ja tarkistamme vuokranmaksukyvyn. Laaja kotivakuutus vastuuosineen vaaditaan. Asukas tekee oman sähkösopimuksen valitsemansa sähköyhtiön kanssa.


Olisiko tässä uusi kotisi?


Varaa asunto itsellesi klikkaamalla "Vuokraa asunto" ja muuta uuteen huolettomaan kotiisi! Varausta tehdessä voit kertoa meille, haluatko käydä asuntonäytöllä ennen vuokrasopimuksen allekirjoittamista. Olemme sinuun yhteydessä mahdollisimman pian varauksesi vastaanottamisen jälkeen.

How can I help you?

Do you want to see the apartment? Please book it first and we'll contact you about a viewing.
Veronika
+358400 213 571(Weekdays from 9 a.m. to 4 p.m)

As Oy Turun Montana

image

Didn't find what you were looking for?

Contact us and our rentals team will make sure you can move in to your new home as fast and easily as possible.
image