Modernit ja raikkaat sisustusvalinnat
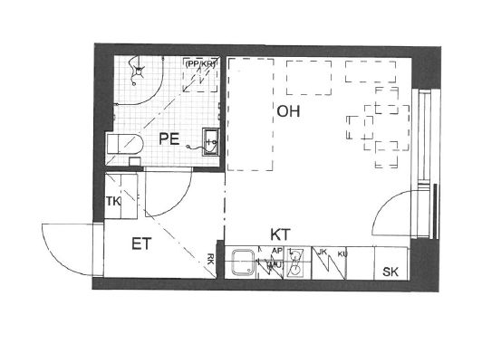
Vuonna 2018 valmistuneessa kerrostalokodissa on ihanat suuret ikkunat, miellyttävät tammilautaparketti ja valkoisiksi maalatut seinät.
Arkea sujuvoittavat keittotilan laadukkaat kodinkoneet, joihin lukeutuvat keraaminen liesitaso ja erillinen kalusteuuni, astianpesukone ja jääkaappi pakastinlokerolla. Kaikissa asunnoissa on tila-varaus mikroaaltouunille. Laatoitetussa kylpyhuoneessa on sauna sekä liitäntä asukkaan omalle, enintään 60 cm leveälle pyykinpesukoneelle. Asuntojen ja kylpyhuoneen lämmön jakelu tapahtuu vesikiertoisella lattialämmityksellä.
Huoletonta vuokra-asumista Kivistön palveluiden ääreltä
Nauti huolettomasta vuokra-asumisesta Vantaan Kivistön viihtyisällä asuinalueella. Tässä huoneistossa on ilahduttavan laadukas varustelu.
Joo Kotien asukkaana nautit myös näistä eduista:
- Vuokravakuus 0 €
- Lemmikit tervetulleita
- Jooppi-asukassovelluksella hoidat helposti kaikki kotisi asiat
Kivistöstä on hyvät liikenneyhteydet kaikkialle pääkaupunkiseudulle – ja kauemmaskin, halusitpa sitten ulkoilemaan, iltaa viettämään tai helpon työmatkan. Kivistön juna-asema sijaitsee n. 100m päässä ja K-Market n. 400m päässä. Kehäratajunan ansiosta pääset Kivistöstä kätevästi mm. Helsinkiin 30 minuutissa ja lentokentälle alle 10 minuutissa.
Taloyhtiössä monipuoliset palvelut: saunaosasto, pesula ja hyvät varastotilat
- Mediamaksuun sisältyy 10 megan nettiyhteys
- Saunaosasto
- Kuivaushuone
- Varastotilat
Asukkaiden käytössä olevat Irtaimistovarastot sijaitsevat asuinrakennuksen ylimmässä kerroksessa. Yhtiössä on jätteiden syvä-keräysastiat, jotka sijaitsevat sisäpihalla. Mediamaksuun sisältyy 10 megan nettiyhteys. Avara saunaosasto kattoterasseineen ja kerhotiloineen sijaitsee Korundin ullakolla.
Vuokrasopimuksen ehdot
Vuokrasopimus on toistaiseksi voimassa oleva, yhden kalenterikuukauden irtisanomisajalla. Sopimuksen ensimmäinen mahdollinen päättymispäivä on kuuden (6) kuukauden kuluttua. Edellytämme puhtaita luottotietoja. Laaja kotivakuutus vastuuosineen vaaditaan. Asukas tekee oman sähkösopimuksen valitsemansa sähköyhtiön kanssa.
Olisiko tässä uusi kotisi?
Varaa asunto itsellesi klikkaamalla "Vuokraa asunto" ja muuta uuteen huolettomaan kotiisi! Varausta tehdessä voit kertoa meille, haluatko käydä asuntonäytöllä ennen vuokrasopimuksen allekirjoittamista. Voit vuokrata asunnon myös videoesittelyllä tai kokonaan ilman näyttöä. Olemme sinuun yhteydessä mahdollisimman pian varauksesi vastaanottamisen jälkeen.









