Huoletonta vuokra-asumista Kivistön palveluiden ääreltä
Nauti huolettomasta vuokra-asumisesta Vantaan Kivistön viihtyisällä asuinalueella. Tässä kolmannen kerroksen huoneistossa on ilahduttavan laadukas varustelu. Joo Koteihin myös lemmikit ovat tervetulleita. Joo-tiimi on apunasi koko vuokralla asumisesi ajan.
Kivistöstä on hyvät liikenneyhteydet kaikkialle pääkaupunkiseudulle – ja kauemmaskin, halusitpa sitten ulkoilemaan, iltaa viettämään tai helpon työmatkan. Kivistön juna-asema sijaitsee n. 100m päässä ja K-Market n. 400m päässä. Kehäratajunan ansiosta pääset Kivistöstä kätevästi mm. Helsinkiin 30 minuutissa ja lentokentälle alle 10 minuutissa.
Kauppakeskus Kiviksen monipuoliset päivittäistavarakaupat Lidl ja S-market, erikoismyymälät, kirjasto, terveysasema, hammashoitola ja kuntokeskus ovat aivan lähelläsi. Kiviksen ravintoloissa ja kahviloissa voit viettää aikaa ystävien kanssa.
Joo Kotien asukkaana nautit myös näistä eduista:
- Vuokravakuus 0 €
- Lemmikit tervetulleita
- Jooppi-asukassovelluksella hoidat helposti kaikki kotisi asiat
- Kotimestari ja muu Joo-tiimi ovat aina apunasi
Modernit ja raikkaat sisustusvalinnat
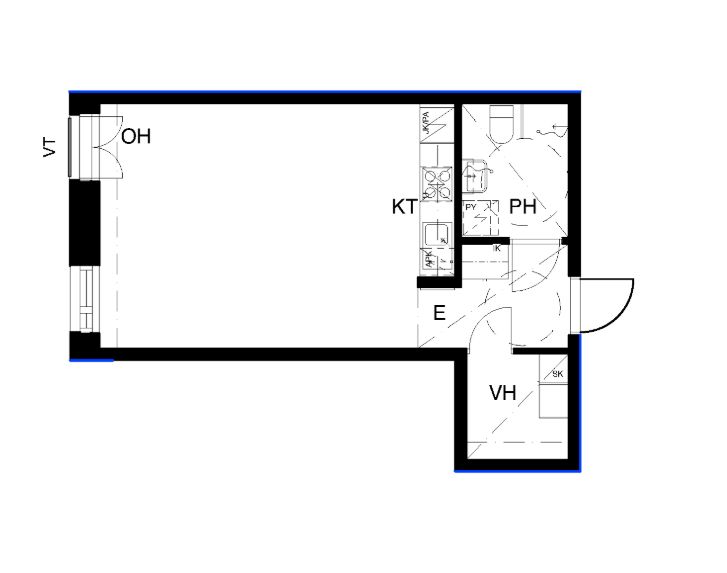
Vuonna 2019 valmistuneessa kerrostalokodissa on ihanat suuret ikkunat, miellyttävät parketti ja valkoisiksi maalatut seinät. Arkea sujuvoittavat keittotilan laadukkaat kodinkoneet, joihin lukeutuvat keraaminen liesitaso ja erillinen kalusteuuni, astianpesukone ja jääkaappi pakastinlokerolla. Kaikissa asunnoissa on tila-varaus mikroaaltouunille. Laatoitetussa kylpyhuoneessa on sauna sekä liitäntä asukkaan omalle, enintään 60 cm leveälle pyykinpesukoneelle. Asuntojen ja kylpyhuoneen lämmön jakelu tapahtuu vesikiertoisella lattialämmityksellä.
Taloyhtiössä monipuoliset palvelut: hyvät varastotilat ja taloyhtiölaajakaista
Asukkaiden käytössä olevat Irtaimistovarastot sijaitsevat asuinrakennuksen ensimmäisessä kerroksessa. Yhtiössä on jätteiden syvä-keräysastiat, jotka sijaitsevat sisäpihalla. Mediamaksuun sisältyy 10 megan nettiyhteys. Autopaikkoja vuokrattavissa viereisestä parkkihallista vapautumisen mukaan.
Taloyhtiön palvelut
Mediamaksuun sisältyy 10 megan nettiyhteys
Varastotilat
Autopaikkoja vuokrattavissa viereisestä parkkihallista vapautumisen mukaan
Vuokrasopimuksen ehdot
Vuokrasopimus on toistaiseksi voimassa oleva. Sopimuksen ensimmäinen mahdollinen päättymispäivä on kuuden (6) kuukauden kuluttua. Edellytämme puhtaita luottotietoja. Laaja kotivakuutus vastuuosineen vaaditaan. Asukas tekee oman sähkösopimuksen valitsemansa sähköyhtiön kanssa.
Olisiko tässä uusi kotisi?
Varaa asunto itsellesi klikkaamalla “Vuokraa asunto“ ja muuta uuteen huolettomaan kotiisi! Varausta tehdessä voit kertoa meille, haluatko käydä asuntonäytöllä ennen vuokrasopimuksen allekirjoittamista. Olemme sinuun yhteydessä mahdollisimman pian varauksesi vastaanottamisen jälkeen.
Huoletonta vuokra-asumista hyvillä kulkuyhteyksillä
As Oy Kivistön Poseidon ja Kronos valmistui loistavalle paikalle aivan Vantaan Kivistön palveluiden ääreen syyskuun lopussa 2019.
Kivistön juna-asema sijaitsee n. 100m päässä ja K-Market n. 400m päässä. Kehäratajunan ansiosta pääset Kivistöstä kätevästi mm. Helsinkiin 30 minuutissa ja lentokentälle alle 10 minuutissa.
Kauppakeskus Kiviksen monipuoliset päivittäistavarakaupat Lidl ja S-market, erikoismyymälät, kirjasto, terveysasema, hammashoitola ja kuntokeskus ovat aivan lähelläsi. Kiviksen ravintoloissa ja kahviloissa voit viettää aikaa ystävien kanssa. Uusi 2026 avattu Citymarket ja sen naapuripalvelut tekevät arjesta sujuvaa.
Joo Kotien asukkaana nautit myös näistä eduista:
- Vuokravakuus 0 €
- Toistaiseksi voimassa oleva vuokrasopimus
- Lemmikit tervetulleita
- Jooppi-asukassovelluksella hoidat helposti kaikki kotisi asiat
Vuokrasopimuksen ehdot
Vuokrasopimus on toistaiseksi voimassa oleva. Sopimuksen ensimmäinen mahdollinen päättymispäivä on kuuden (6) kuukauden kuluttua. Edellytämme puhtaita luottotietoja ja tarkistamme vuokranmaksukyvyn. Laaja kotivakuutus vastuuosineen vaaditaan. Asukas tekee oman sähkösopimuksen valitsemansa sähköyhtiön kanssa.
Olisiko tässä uusi kotisi?
Varaa asunto itsellesi klikkaamalla "Vuokraa asunto" ja muuta uuteen huolettomaan kotiisi! Varausta tehdessä voit kertoa meille, haluatko käydä asuntonäytöllä ennen vuokrasopimuksen allekirjoittamista. Olemme sinuun yhteydessä mahdollisimman pian varauksesi vastaanottamisen jälkeen.
How can I help you?
Other apartments suitable for you
Didn't find what you were looking for?








