Ensimmäisen kuukauden vuokra -50 %
Tässä kodissa ensimmäinen vuokra on –50 %, kun sopimuksesi alkaa viimeistään 2.1.2026. Etu on voimassa uusille asiakkaille.
Ritaharjun palvelut käden ulottuvilla
As Oy Oulun Ritametsä sijaitsee kävelymatkan päässä Ideaparkin palveluista. Muut palvelut ovat niinikään käden ulottuvilla. Asunnolta pääsee myös helposti ulkoilureiteille sekä Ritaharjun fitness-puistoon. Yliopistolle matkaa on noin 3,5 kilometriä.
Joo Kotien asukkaana nautit myös näistä eduista:
- Vuokravakuus 0 €
- Lemmikit tervetulleita
- Jooppi-asukassovelluksella hoidat helposti kaikki kotisi asiat
- Joo-tiimi aina apunasi
Toisella puolella katua sijaitsevat Rusta, K-Supermarket, Motonet sekä S-market. Lähialueilta löytyy lisäksi useita päiväkoteja, koulu, kuntosali sekä kirjasto. Bussilla kuljet kätevästi lähes joka suuntaan. Asunto Oy Oulun Ritametsä on Oulun Ritaharjuun vuonna 2019 valmistunut kerrostalo, jossa on koteja koossa 21-60 m² yksiöistä kolmioihin.
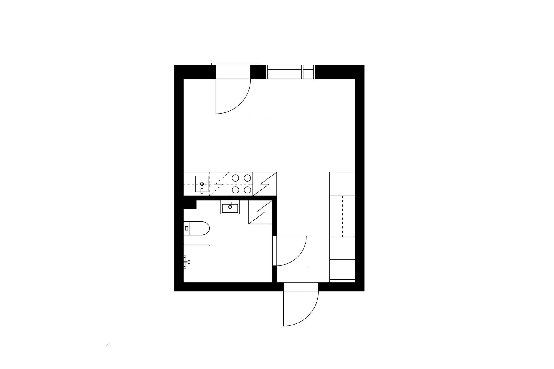
Käytännöllinen ja kompakti koti
Raikkaan vaalean kodin keittotilan yläkaapit ovat puunsävyiset ja tunnelmaa tuo myös puunsävyinen lattia.
Keittiön varusteina liesi, jääkaappi pakastinlokerolla ja astianpesukone. Laatoitetussa kylpyhuoneessa tilavaraus pyykinpesukoneelle sekä mukavuutena sähköinen lattialämmitys. Tässä asunnossa on ranskalainen parveke.
Taloyhtiön saunassa voit nauttia lempeistä löylyistä
- Sauna
- Kuivaushuone
- Lämmin huoneistokohtainen irtaimistovarasto
- Pyörävarasto
- 10M Telian taloyhtiön laajakaista
Asukkaiden varattavissa on taloyhtiön siisti ja tunnelmallinen sauna kiinteistöhuollon hinnaston mukaisesti. Jokaiselle asunnolle kuuluu oma häkkivarasto ja yhteisessä käytössä on pyörävarasto taloyhtiön pihalla.
Autopaikat: Tolpallinen pihapaikka 30 € / kk ja tolpallinen katospaikka 50 € / kk. Kysy autopaikkojen saatavuus erikseen asunnon vuokraajalta.
Vuokrasopimuksen ehdot
Vuokrasopimus on toistaiseksi voimassa oleva. Sopimuksen ensimmäinen mahdollinen päättymispäivä on kahdentoista (12) kuukauden kuluttua. Edellytämme puhtaita luottotietoja. Laaja kotivakuutus vastuuosineen vaaditaan. Asukas tekee oman sähkösopimuksen valitsemansa sähköyhtiön kanssa.
Olisiko tässä uusi kotisi?
Varaa asunto itsellesi klikkaamalla "Vuokraa asunto" ja muuta uuteen huolettomaan kotiisi! Varausta tehdessä voit kertoa meille, haluatko käydä asuntonäytöllä ennen vuokrasopimuksen allekirjoittamista. Voit vuokrata asunnon myös videoesittelyllä tai kokonaan ilman näyttöä. Olemme sinuun yhteydessä mahdollisimman pian varauksesi vastaanottamisen jälkeen.
How can I help you?

Other apartments suitable for you
Didn't find what you were looking for?















