Huoletonta asumista Ritaharjun palveluiden äärellä
As Oy Oulun Ritaharju sijaitsee kävelymatkan päässä Ideaparkin palveluista. Muut palvelut ovat niinikään käden ulottuvilla. Asunnolta pääsee myös helposti ulkoilureiteille sekä Ritaharjun fitness-puistoon. Yliopistolle matkaa on noin 3,5 kilometriä.
Joo Kotien asukkaana nautit myös näistä eduista:
- Vuokravakuus 0 €
- Lemmikit tervetulleita
- Jooppi-asukassovelluksella hoidat helposti kaikki kotisi asiat
- Joo-tiimi aina apunasi
Pienen matkan päässä sijaitsevat Rusta, K-Supermarket, Motonet sekä S-market. Lähialueilta löytyy lisäksi useita päiväkoteja, koulu sekä kirjasto. Bussilla kuljet kätevästi lähes joka suuntaan. Asunto Oy Oulun Ritaharju on Oulun Ritaharjuun vuonna 2019 valmistunut kerrostalo, jossa on koteja koossa 28,5-75 m² yksiöistä kolmioihin.
Tilavasta lasitetusta parvekkeesta yksi huone lisää
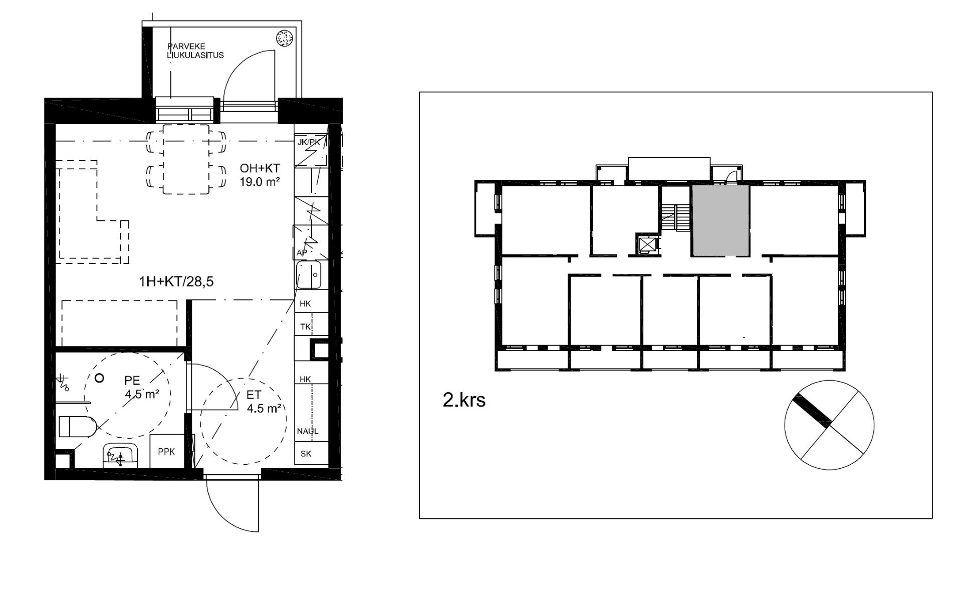
Tässä reilun kokoisessa yksiössä on otettu järkevästi suunniteltu pohjaratkaisu, jonka ansiosta saat mahtumaan kotiin kaiken tarvittavan. Tämän valoisan kodin seinät ovat maalattu valkoisiksi ja lattiat ovat laminaattia. Lasitetun parvekkeen ansiosta saat lisää neliöitä ja viihtyisän kesähuoneen.
Keittiön varusteina liesi, jääkaappipakastin, astianpesukone ja tilavaraus omalle mikrolle. Laatoitetussa kylpyhuoneessa tilavaraus pyykinpesukoneelle.
Kuvat ovat vastaavasta asunnosta, pintamateriaalit voivat hieman vaihdella.
Lisää säilytystilaa huoneistokohtaisesta häkkivarastosta
- Huoneistokohtainen lämmin irtaimistovarasto
- Pyörävarasto
- 10M DNA taloyhtiön laajakaista
Autopaikat: Tolpallinen pihapaikka 30 € / kk. Kysy autopaikkojen saatavuus erikseen asunnon vuokraajalta.
Vuokrasopimuksen ehdot
Vuokrasopimus on toistaiseksi voimassa oleva, yhden kalenterikuukauden irtisanomisajalla. Sopimuksen ensimmäinen mahdollinen päättymispäivä on kahdentoista (12) kuukauden kuluttua. Edellytämme puhtaita luottotietoja. Laaja kotivakuutus vastuuosineen vaaditaan. Asukas tekee oman sähkösopimuksen valitsemansa sähköyhtiön kanssa.
Olisiko tässä uusi kotisi?
Varaa asunto itsellesi klikkaamalla "Vuokraa asunto" ja muuta uuteen huolettomaan kotiisi! Varausta tehdessä voit kertoa meille, haluatko käydä asuntonäytöllä ennen vuokrasopimuksen allekirjoittamista. Voit vuokrata asunnon myös videoesittelyllä tai kokonaan ilman näyttöä. Olemme sinuun yhteydessä mahdollisimman pian varauksesi vastaanottamisen jälkeen.
How can I help you?

Other apartments suitable for you
Didn't find what you were looking for?

















