Huoletonta vuokra-asumista Henttaalla
Huoleton yksiö koko asunnon levyisellä lasitetulla parvekkeella, josta metsämaisemat. Asunto sijaitsee Espoon keskeisellä Henttaan alueella, jossa sekä palvelut että julkiset ovat lähellä.
Joo Kotien asukkaana nautit myös näistä eduista:
- Vuokravakuus 0 €
- Lemmikit tervetulleita
- Jooppi-asukassovelluksella hoidat helposti kaikki kotisi asiat
- Joo-tiimi on aina apunasi
As Oy Espoon Sopraano on valmistunut vuonna 2022 Espoon sydämeen Henttaanlaaksoon, Lillhemtin puiston kupeeseen. Muun muassa Opinmäen kampuks sekä monipuolinen palvelukattaus lähistöllä. Kehä II ja Turunväylä kulkevat alueen läheisyydessä. Myös Suurpellon monipuoliset palvelut ovat taloyhtiön läheisyydessä.
Ajattomat ja laadukkaat materiaalivalinnat sekä korkea huonekorkeus luovat kauniin pohjan sisustukselle
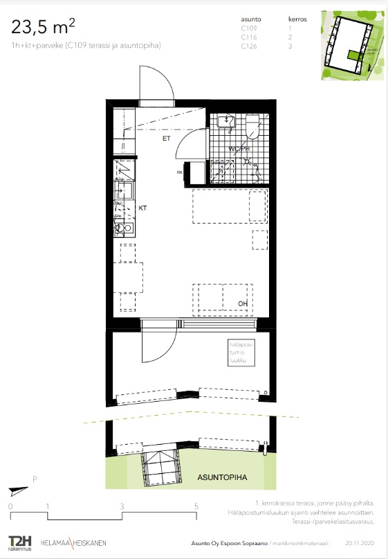
Tämä moderni asunto muodostuu laadukkaista materiaaleista sekä ainutlaatuisen korkeasta huonekorkeudesta, joka yhdistetään suuriin, lattiasta kattoon saakka ulottuviin ikkunoihin. Keittiön kalusteet ovat Topi-keittiöiltä ja kylpyhuoneen laatat Laatapisteeltä. Asunnon lasitettu parveke on koko kodin levyinen. Maisemat rauhalliseen metsään päin.
Keittiössä on upotetut kodinkoneet; astianpesukone, jääkaappi pakastinlokerolla, liesitaso, liesikupu sekä kalusteuuni. Vesikiertoinen lattialämmitys parketin alla luo luksusta asumiseen. Vaaleassa, laatoitetussa kylpyhuoneessa tila pyykinpesukoneelle.
HUOM! Asunnon kuvat peilikuvallisesta saman yhtiön asunnosta.
Taloyhtiön kattavat palvelut sisältävät muun muassa ylimmän kerroksen saunan sekä taloyhtiön laajakaistan
- Ylimmän kerroksen saunaosasto
- Pesutupa
- 10M Telian taloyhtiön laajakaista
- Irtaimistovarastot
- Autopaikka
Talon ylimmässä kerroksessa on upea saunaosasto talon, josta avarat näkymät peltojen yli.
Taloyhtiössä on myös pesula- ja kuivaustilat, eli oma pyykinpesukone ei ole välttämätön hankinta.
Mediamaksuun sisältyy taloyhtiön 10M laajakaista.
Jokaiselle asunnolle on oma lämmin varastotila. Taloyhtiöllä on myös kerhotila käytössä, jonka voi vuokrata vaikka juhlia tai etätyöskentelyä varten.
Kysy autopaikkojen ajankohtainen saatavuus vuokraajalta.
Vuokrasopimuksen ehdot
Vuokrasopimus on toistaiseksi voimassa oleva. Vuokrasopimuksen ensimmäinen mahdollinen päättymispäivä on kahdentoista (12) kuukauden kuluttua. Edellytämme puhtaita luottotietoja. Laaja kotivakuutus vastuuosineen vaaditaan. Asukas tekee oman sähkösopimuksen valitsemansa sähköyhtiön kanssa.
Olisiko tässä uusi kotisi?
Varaa asunto itsellesi klikkaamalla "Vuokraa asunto" ja muuta uuteen huolettomaan kotiisi! Varausta tehdessä voit kertoa meille, haluatko käydä asuntonäytöllä ennen vuokrasopimuksen allekirjoittamista. Voit vuokrata asunnon myös videoesittelyllä tai kokonaan ilman näyttöä. Olemme sinuun yhteydessä mahdollisimman pian varauksesi vastaanottamisen jälkeen.















