nokia > 
a-147

Nansonkatu 9 A 147

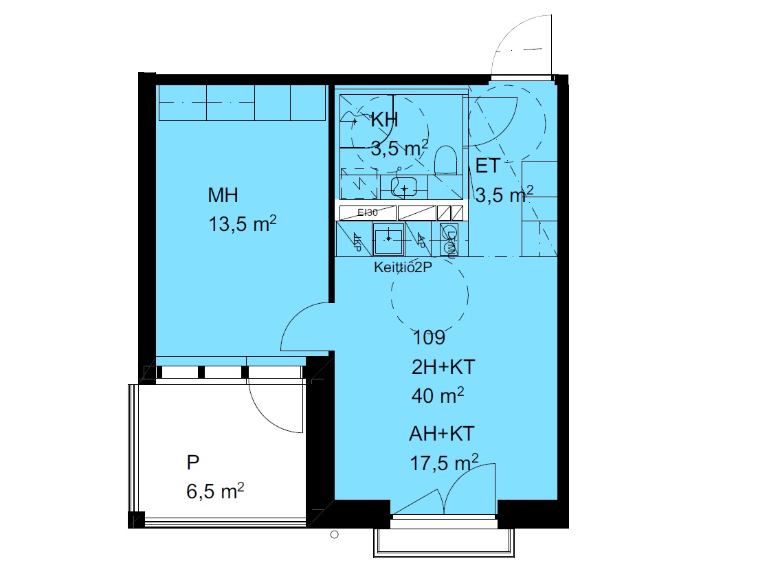
2h+k+kph+l.parv+r.parv
Rent €
689/month
Area
40 m²
Floor
4/9
Year of construction
2021
Available from
Not available
Deposit €
0
Moderni kaksio Nokialta

Ensimmäisen kuukauden vuokra -50 %

Tässä kodissa ensimmäinen vuokra on –50 %, kun sopimuksesi alkaa viimeistään 1.11.2025.

Huoletonta vuokra-asumista Nokian asemanseudun uudisalueella

Nauti huolettomasta vuokra-asumisesta Nokian Puroniityn asuinalueella. Eläminen Nokialla kannustaa aktiiviseen elämään, lähialueen liikuntamahdollisuudet ovat monipuoliset. Arjen palvelut ovat kävelymatkan päässä ja lähijuna kuljettaa Tampereen keskustaan vartissa.

  • Vuokravakuus 0 €
  • Lemmikit tervetulleita
  • Jooppi-asukassovelluksella hoidat helposti kaikki kotisi asiat
  • Kotimestari ja muu Joo-tiimi ovat aina apunasi

Lähipalvelut löytyvät kävelymatkan päästä, Nokian keskustaankin hujautat pyörällä hetkessä. Talolta muutaman kilometrin säteeltä löytyy kaksi ruokakauppaa, jäähalli, uudenkarhea Agco Power-areena, päiväkoti ja koulu. Läheiset ulkoilumaastot tekevät koiranomistajan arjesta helppoa ja huoletonta.

Nokian Värjäämössä asuntoja on 9 kerroksessa, yksiöistä kaksioihin. Asuntojen koot vaihtelevat kokoluokassa 26,5-40,5m².

Huolella valitut pintamateriaalit luovat kauniin pohjan sisustukselle

Asunnossa on vaalea parkettilattia ja valkoisiksi maalatut seinät. Arkea sujuvoittavat keittotilan laadukkaat integroidut kodinkoneet, joihin lukeutuvat keraaminen liesitaso, uuni-mikroyhdistelmä, astianpesukone ja jääkaappi pakastinlokerolla.

Laatoitetussa kylpyhuoneessa on liitäntä asukkaan omalle, enintään 60 cm leveälle edestä täytettävälle pyykinpesukoneelle. Vesikiertoinen, seinäpaneelista ohjattava kaukolämpöön liitetty lattialämmitys pitää jalat lämpiminä myös talvisin. Kylpyhuoneessa on sähköinen lattian mukavuuslämmitys. Asunnossa ranskalainen parveke olohuoneessa ja lasitettu parveke makuuhuoneen yhteydessä.

Taloyhtiössä monipuoliset palvelut

  • Ulkoiluvälinevarasto
  • Irtaimistovarastot
  • 100M Telian taloyhtiön laajakaista
  • Digitaalinen iLOQ-avain
  • Taloyhtiö on esteetön ja savuton

Taloyhtiössä on jonotuksella vuokrattavissa lämmitystolpallisia autopaikkoja, 30€/kk. Kysy autopaikkojen saatavuus erikseen asunnon vuokraajalta.

Vuokrasopimuksen ehdot

Kun vuokraat tämän asunnon, tarjoamme sinulle yhden kuukauden vuokran –50%. Vuokrasopimuksen tulee alkaa viimeistään 1.11.2025. Vuokrasopimus on toistaiseksi voimassa oleva. Kampanjasopimuksen ensimmäinen mahdollinen päättymispäivä on kuuden (6) kuukauden kuluttua. Edellytämme puhtaita luottotietoja. Laaja kotivakuutus vastuuosineen vaaditaan. Asukas tekee oman sähkösopimuksen valitsemansa sähköyhtiön kanssa.

Olisiko tässä uusi kotisi?

Varaa asunto itsellesi klikkaamalla "Vuokraa asunto" ja muuta uuteen huolettomaan kotiisi! Varausta tehdessä voit kertoa meille, haluatko käydä asuntonäytöllä ennen vuokrasopimuksen allekirjoittamista. Voit vuokrata asunnon myös videoesittelyllä tai kokonaan ilman näyttöä. Olemme sinuun yhteydessä mahdollisimman pian varauksesi vastaanottamisen jälkeen.

image

How can I help you?

Do you want to see the apartment? Please book it first and we'll contact you about a viewing.
Fia
+358400213632(Weekdays from 9 a.m. to 4 p.m)

As Oy Nokian Värjäämö

image

Didn't find what you were looking for?

Contact us and our rentals team will make sure you can move in to your new home as fast and easily as possible.
image