Huoletonta vuokra-asumista Kaurialassa, rauhallisessa taloyhtiössä
Nauti huolettomasta vuokra-asumisesta rauhallisella ja suositulla Kaurialan puutaloalueella, Hämeenlinnan keskustan kupeessa. Lähistöllä oleva Ahveniston alue hemmottelee ulkoilun ystävää, alueelta löytyy vuodenajasta riippuen retkeilyreitit kävelijöille ja maastopyöräilijöille, luistinrata, maauimala, avanto sekä rantasauna!
Joo Kotien asukkaana nautit myös näistä eduista:
- Vuokravakuus 0 €
- Lemmikit tervetulleita
- Jooppi-asukassovelluksella hoidat helposti kaikki kotisi asiat
- Joo-tiimi aina apunasi
As Oy Hämeenlinnan Parolantie sijaitsee rauhallisella Kaurialan alueella, noin 1,5 kilometrin päässä Hämeenlinnan keskustasta. Liikkumaan pääset kätevästi omalla autolla, julkisella liikenteellä taikka kävellen. Kivenheiton päästä löytyy jäähalli, Loimua-areena ja Kaurialan koulu. Myöskin lähikauppa sekä kuntosali palvelevat alle kilometrin säteellä taloyhtiöstä.
Hämeenlinnan Parolantiellä asuntoja on 4 kerroksessa, kaksioista kolmioihin. Asuntojen koot vaihtelevat kokoluokassa 41,5-67,5 m2.
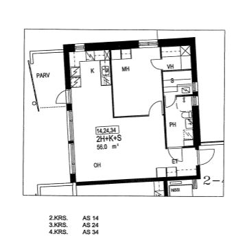
Tilava ja valoisa koti
Tässä kolmannen kerroksen valoisassa kaksiossa on fiksu pohja, jonka ansiosta kohti on helppo sisustaa. Asunnon seinät ovat maalatut ja lattiassa on muovimatto. Oma vaatehuone tulee lisää säilytystilaa. Arkea sujuvoittavat keittotilan laadukkaat kodinkoneet, joihin lukeutuvat lattialiesi ja jääkaappipakastin. Kylpyhuoneessa on tila ja liitäntä asukkaan omalle pyykinpesukoneelle. Asuntojen lämmityksenä on termostaatein ohjattu vesikiertoinen patterilämmitys, joka on liitetty kaukolämpöverkostoon. Asunnossa on oma sauna sekä parveke.
Taloyhtiössä monipuoliset palvelut
- Kerhohuone
- Kuivaushuone
- Irtaimistovarastot
- iBoxen-pakettiautomaatti
- Ulkoiluvälinevarasto
- 100 M Telian taloyhtiön laajakaista
Kotipihallasi on iBoxen-pakettiautomaatti, josta voit noutaa Matkahuollon kuljettamia verkkokauppaostoksia ja muita Matkahuollon kuljettamia paketteja kätevästi vuorokauden ympäri. Voit myös lähettää paketteja kaikkialle Suomeen Matkahuollon palvelupisteisiin sekä ulkomaille. Pääset käyttämään iBoxenia, kun lataat itsellesi Matkahuolto Paketit -sovelluksen laitteesi sovelluskaupasta.
Taloyhtiössä lämmitystolpallisia pihapaikkoja 30 €/kk. Kysy autopaikkojen saatavuus erikseen asunnon vuokraajalta.
Joo Kotien asukkaana nautit myös näistä eduista:
- Vuokravakuus 0 €
- Lemmikit tervetulleita
- Jooppi-asukassovelluksella hoidat helposti kaikki kotisi asiat
- Joo-tiimi aina apunasi
Vuokrasopimuksen ehdot
Vuokrasopimus on toistaiseksi voimassa oleva. Vuokrasopimuksen ensimmäinen mahdollinen päättymispäivä on kahdentoista (12) kuukauden kuluttua. Edellytämme puhtaita luottotietoja. Laaja kotivakuutus vastuuosineen vaaditaan. Asukas tekee oman sähkösopimuksen valitsemansa sähköyhtiön kanssa.
Olisiko tässä uusi kotisi?
Varaa asunto itsellesi klikkaamalla "Vuokraa asunto" ja muuta uuteen huolettomaan kotiisi! Varausta tehdessä voit kertoa meille, haluatko käydä asuntonäytöllä ennen vuokrasopimuksen allekirjoittamista. Voit vuokrata asunnon myös videoesittelyllä tai kokonaan ilman näyttöä. Olemme sinuun yhteydessä mahdollisimman pian varauksesi vastaanottamisen jälkeen.
How can I help you?

Other apartments suitable for you
Didn't find what you were looking for?











