Skandinaavisen vaaleat sisustusvalinnat
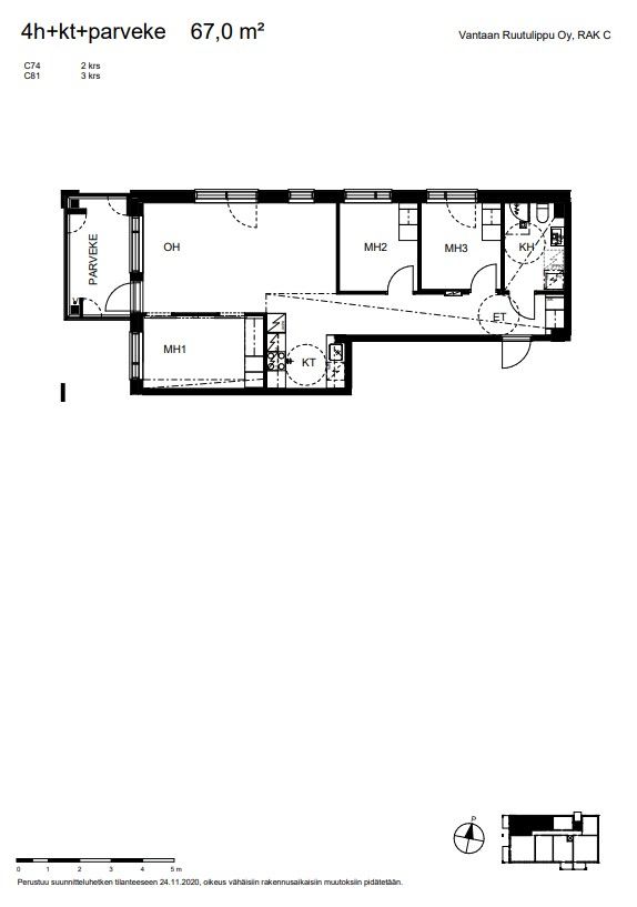
Vuoden 2021 toisella puoliskolla valmistuneissa kerrostalokodeissa on ihanan suuret ikkunat. Valoisuutta tuovat vaaleat värit sekä seinissä että kodinkoneissa, mutta myös kevyen harmaa laminaattilattia.
Sujuvan arjen takaa moderni, jääkaappipakastimella ja astianpesukoneella varustettu keittiö. Lattialiesikin on täysikokoinen. Tilava kylpyhuone on laatoitettu ihanilla, isoilla valkoisilla laatoilla. Sinne mahtuu myös kaikenkokoiset ja muotoiset pesukoneet. Asunnon kokonaisuuden kruunaa lasitettu parveke.
Huoletonta vuokra-asumista Keimolanmäen luonnonläheisellä asuinalueella
Viihtyisä ja luonnonläheinen Keimolanmäki sijaitsee Vantaan länsiosissa, Kivistön suuralueen Keimolan kaupunginosassa, vilkkaan Hämeenlinnanväylän länsipuolella. Sujuvien bussi- sekä junayhteyksien ansiosta pääset liikkumaan kätevästi myös ilman omaa autoa. Koiranomistajille ja lenkkeilijöille löytyy paljon hyviä ulkoilumaastoja, muun muassa Isosuon Pitkospuureitti alkaa aivan talon vierestä. Lähin päiväkoti ja koulu puolestaan sijaitsevat alle 400 metrin päässä. Kivistön monipuoliset palvelut juna-aseman kera löytyvät vajaan parin kilometrin päästä.
Vantaan Ruutulipussa asuntoja on kuudessa kerroksessa, aina yksiöistä neliöihin asti. Asuntojen koot vaihtelevat 25,5-67 m2.
Joo Kotien asukkaana nautit myös näistä eduista:
- Vuokravakuus 0 €
- Lemmikit tervetulleita
- Jooppi-asukassovelluksella hoidat helposti kaikki kotisi asiat
- Joo-tiimi on aina apunasi
Taloyhtiössä monipuoliset palvelut
- Saunaosasto
- Ulkovälinevarasto
- Irtainvarasto
- Kuivaushuone
- Mediamaksuun sisältyy 100 M laajakaista
- iBoxen
- Digitaalinen iLOQ-avain
- Savuton taloyhtiö
Kotipihallasi on iBoxen-pakettiautomaatti, josta voit noutaa Matkahuollon kuljettamia verkkokauppaostoksia ja muita Matkahuollon kuljettamia paketteja kätevästi vuorokauden ympäri. Voit myös lähettää paketteja kaikkialle Suomeen Matkahuollon palvelupisteisiin sekä ulkomaille. Pääset käyttämään iBoxenia, kun lataat itsellesi Matkahuolto Paketit -sovelluksen laitteesi sovelluskaupasta.
Taloyhtiössä on lämmitystolpallisia piha- ja katospaikkoja. Osassa paikoissa hybridiautoille latausmahdollisuus. Kysy autopaikkojen saatavuus erikseen asunnon vuokraajalta.
Vuokrasopimuksen ehdot
Vuokrasopimus on toistaiseksi voimassa oleva. Sopimuksen ensimmäinen mahdollinen päättymispäivä on kuuden (6) kuukauden kuluttua. Edellytämme puhtaita luottotietoja ja tarkistamme vuokranmaksukyvyn. Laaja kotivakuutus vastuuosineen vaaditaan. Asukas tekee oman sähkösopimuksen valitsemansa sähköyhtiön kanssa.
Olisiko tässä uusi kotisi?
Varaa asunto itsellesi klikkaamalla "Vuokraa asunto" ja muuta uuteen huolettomaan kotiisi! Varausta tehdessä voit kertoa meille, haluatko käydä asuntonäytöllä ennen vuokrasopimuksen allekirjoittamista. Olemme sinuun yhteydessä mahdollisimman pian varauksesi vastaanottamisen jälkeen.
Miten voin auttaa?

Muita sinulle sopivia kohteita
Etkö löytänyt etsimääsi?
























