Herttuankulmassa nautit huolettomasta uudiskohdealueesta Turun keskustan kupeessa
Turku on Suomen vanhin kaupunki, jossa riittää historiallisia nähtävyyksiä ja modernia kaupunkikulttuuria. Kotisi sijaitsee sopivalla etäisyydellä ydinkeskustasta, sillä sinun ei tarvitse valita oman rauhan ja palveluiden välillä - meiltä saat molemmat. Läheltäsi löytyvät muun muassa Turun linna, satama ja Ruissalon merelliset maisemat. Parin kilometrin matka keskustaan taittuu nopeasti pyörällä tai bussilla.
Joo Kotien asukkaana nautit myös näistä eduista:
- Vakuus 0 EUR
- Lemmikit ovat tervetulleita
- Joo-tiimi on aina apunasi
- Jooppi-asukassovelluksella hoidat helposti kaikki kotisi asiat
- Taloyhtiössä yhteiskäyttöauto
Taloyhtiö sijaitsee energisellä ja kasvavalla Herttuankulman alueella.
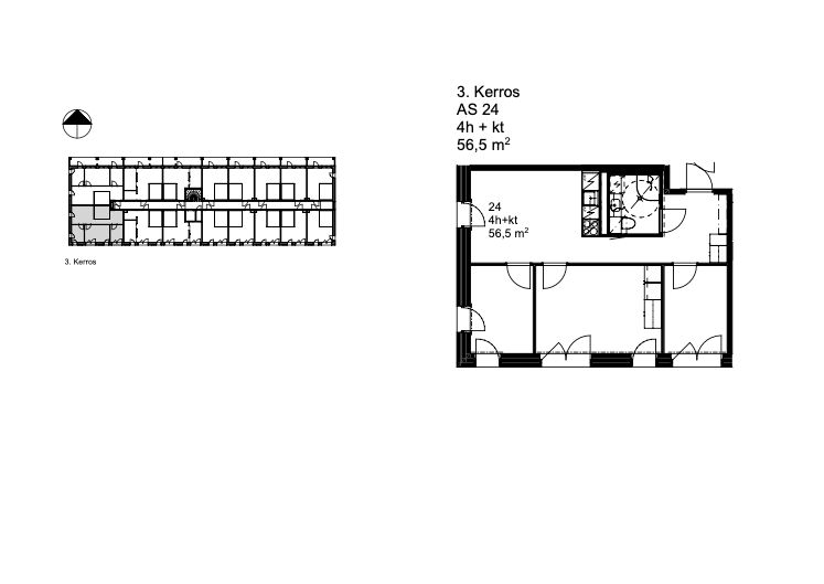
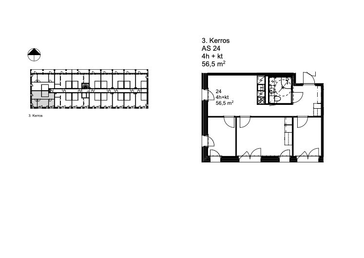
Taloyhtiössä on 6 kerrosta ja asuntojen koot vaihtelevat 24m2- 62,5m2.
Moderni taloyhtiö sijaitsee sataman lähellä, noin kilometrin päässä Turun Linnasta. Turun keskustan palveluihin on matkaa vajaa kolme kilometriä, bussilla matka kestää noin kymmenen minuuttia.
Sujuva julkinen liikenne sekä lyhyet etäisyydet palvelujen äärelle tekevät arjestasi huoletonta.
Modernit ja raikkaat sisustusvalinnat
Vuonna 2022 valmistuneessa kerrostalokodissa on ihanat suuret ikkunat, miellyttävät laminaatti lattiat ja valkoisiksi maalatut seinät luovat kauniin pohjan sisustuksellesi. Tässä asunnossa on toimiva pohjaratkaisu, jonka ansiosta saat mahtumaan kotiisi kaiken tarvittavan.
Arkea sujuvoittavat keittotilan laadukkaat integroidut kodinkoneet, joihin lukeutuvat induktio liesi, astianpesukone, mikro yhdistelmäuuni ja jääkaappi pakastinlokerolla.
Laatoitetussa kylpyhuoneessa on liitäntä asukkaan omalle, enintään 60 cm leveälle pyykinpesukoneelle. Asuntojen lämmityksenä on termostaatein ohjattu vesikiertoinen lattialämmitys, joka on liitetty kaukolämpöverkostoon. Kylpyhuoneessa varpaat pysyvät lämpöisenä sähköisen asukkaan itse säädettävän ”mukavuuslämmön” avulla.
Taloyhtiössä monipuoliset palvelut Joo Work tilasta yhteiskäyttöautoon
- Ulkoiluvälinevarasto
- Irtaimistovarastot
- Yhteiskäyttöauto
- 100M Telian taloyhtiön laajakaista
- Digitaalinen iLOQ-avain
- Taloyhtiö on esteetön ja savuton
- iBoxen
Auto käyttöön omalta kotipihalta? Joo'o. Tässä taloyhtiössä on yhteiskäyttöauto, jolla kuljetat isommat ostokset kotiin, hurautat harrastuksiin tai reissaat viikonlopun viettoon edulliseen hintaan. Perheen pienimpien päiväkotimatkaan ei autoa tarvita, sillä päiväkoti sijaitsee kotitalon sisäpihalla.
Kotipihallasi on iBoxen-pakettiautomaatti, josta voit noutaa Matkahuollon kuljettamia verkkokauppaostoksia ja muita Matkahuollon kuljettamia paketteja kätevästi vuorokauden ympäri. Voit myös lähettää paketteja kaikkialle Suomeen Matkahuollon palvelupisteisiin sekä ulkomaille. Pääset käyttämään iBoxenia, kun lataat itsellesi Matkahuolto Paketit -sovelluksen laitteesi sovelluskaupasta.
Taloyhtiössä autohallipaikkoja 70 €/kk.
Kysy autopaikkojen saatavuus erikseen asunnon vuokraajalta.
Vuokrasopimuksen ehdot
Vuokrasopimus on toistaiseksi voimassa oleva. Sopimuksen ensimmäinen mahdollinen päättymispäivä on 12 kuukauden kuluttua. Edellytämme puhtaita luottotietoja ja tarkistamme vuokranmaksukyvyn. Laaja kotivakuutus vastuuosineen vaaditaan. Asukas tekee oman sähkösopimuksen valitsemansa sähköyhtiön kanssa.
Olisiko tässä uusi kotisi?
Varaa asunto itsellesi klikkaamalla "Vuokraa asunto" ja muuta uuteen huolettomaan kotiisi! Varausta tehdessä voit kertoa meille, haluatko käydä asuntonäytöllä ennen vuokrasopimuksen allekirjoittamista. Olemme sinuun yhteydessä mahdollisimman pian varauksesi vastaanottamisen jälkeen.
Miten voin auttaa?

Muita sinulle sopivia kohteita
Etkö löytänyt etsimääsi?


































