Huoletonta vuokra-asumista vehreässä Vuoreksessa
Nauti huolettomasta vuokra-asumisesta Tampereen Vuoreksessa! Isokuusi on Vuoreksen puurakentamisalue hyvällä sijainnilla. Vuoreksen Kosmoksesta pääset kulkemaan näppärästä bussipysäkille ja kohteelta on maltillinen matka Vuoreskeskukseen.
Joo Kotien asukkaana nautit myös näistä eduista:
- Vuokravakuus 0 €
- Lemmikit tervetulleita
- Jooppi-asukassovelluksella hoidat helposti kaikki kotisi asiat
- Kotimestari ja muu Joo-tiimi ovat aina apunasi
Luonnonläheinen Vuores sijaitsee noin 8 km päässä Tampereen keskustasta ja 5 km etäisyydellä Hervannasta. Vuoreksesta hyvät bussiyhteydet keskustaan sekä Hervantaan. Pääset näin ollen liikkumaan kätevästi myös ilman omaa autoa. Koiranomistajille ja lenkkeilijöille löytyy paljon hyviä ulkoilumaastoja. Vuoreksesta löytyy myös ihana koirapuisto, joka vain 100 m etäisyydellä taloyhtiöstä.
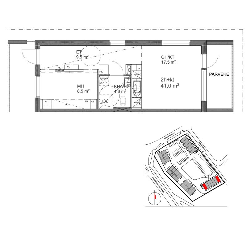
Vuoreksen Kosmoksessa asuntoja on kahdessa kerroksessa. Maantasossa sijaitsevat 20 m2 kokoiset yksiöt ja luhtitalon toisessa kerroksessa on 41 m2 kokoisia kaksioita.
Huolella valitut pintamateriaalit luovat kauniin pohjan sisustukselle
Vuonna 2020 valmistuneessa luhtitalokaksiossa on ihana kompakti keittiö, miellyttävät laminaattilattiat ja valkoisiksi maalatut seinät. Arkea sujuvoittavat keittiön laadukkaat kodinkoneet, joihin lukeutuvat keraaminen liesi, leveä astianpesukone sekä jääkaappipakastin. Huoneistossa tilava lasittamaton parveke.
Luhtitalosunnossa on oma kätevä sisäänkäynti. Huoneistossa säilytystilaa eteisen kaapissa, alkovissa sijaitsevissa kaapistoissa sekä huoneistokohtaisesta häkkivarastosta. Laatoitetussa kylpyhuoneessa on tila sekä liitäntä pyykinpesukoneelle. Vesikiertoinen lattialämmitys pitää jalat lämpiminä kylpyhuoneessa myös talviaikaan.
Taloyhtiössä monipuoliset palvelut
- Taloyhtiösauna
- Irtainvarastot
- Ulkoiluvälinevarasto
- 100M Lounean taloyhtiön laajakaista
Taloyhtiösauna, irtainvarastot sekä pyörävarasto sijaitsevat vastapäisessä osaketalossa. Saunan yhteydessä rentoutumistila sekä ihastuttava terassi! Asukkaan mediamaksuun sisältyy 100M Lounean taloyhtiölaajakaista.
Taloyhtiössä vuokrattavissa lämmitystolpallisia pihapaikkoja 30€/kk. Kysy autopaikkojen saatavuus erikseen asunnon vuokraajalta.
Vuokrasopimuksen ehdot
Vuokrasopimus on toistaiseksi voimassaoleva. Sopimuksen ensimmäinen mahdollinen päättymispäivä on 12 kuukauden kuluttua. Irtisanomisaika on yksi (1) kalenterikuukausi. Edellytämme puhtaita luottotietoja ja tarkistamme vuokranmaksukyvyn. Laaja kotivakuutus vastuuosineen vaaditaan. Asukas tekee oman sähkösopimuksen valitsemansa sähköyhtiön kanssa.
Olisiko tässä uusi kotisi?
Varaa asunto itsellesi klikkaamalla "Vuokraa asunto" ja muuta uuteen huolettomaan kotiisi! Varausta tehdessä voit kertoa meille, haluatko käydä asuntonäytöllä ennen vuokrasopimuksen allekirjoittamista. Voit vuokrata asunnon myös videoesittelyllä tai kokonaan ilman näyttöä. Olemme sinuun yhteydessä mahdollisimman pian varauksesi vastaanottamisen jälkeen.
Miten voin auttaa?

Muita sinulle sopivia kohteita
Etkö löytänyt etsimääsi?


















