Huoletonta vuokra-asumista Asemanrannassa, Vanajaveden ulkoilumaastojen kupeessa
Nauti huolettomasta vuokra-asumisesta Asemanrannan uudessa viihtyisässä asuinkorttelissa! Lähdetkö kävelylle Vanajaveden rantareitille vai pakkaatko piknikeväät Linnapuistoon? Kulttuurinystäviä puolestaan hemmottelee Verkatehtaan tapahtumatalo, jossa on tarjolla elokuvia ja konsertteja.
Joo Kotien asukkaana nautit myös näistä eduista:
- Vuokravakuus 0 €
- Lemmikit tervetulleita
- Jooppi-asukassovelluksella hoidat helposti kaikki kotisi asiat
- Joo-tiimi aina apunasi
Kotoa pääset kulkemaan mainiosti vaikkapa Tampereen tai Helsingin suuntaan, sillä rautatieasema löytyy tien toiselta puolelta. Hämeenlinnan keskustan ravintolat ja palvelut tavoitat kävelymatkan päästä. Perheen pienempien päiväkotimatkaan ei autoa tarvita, sillä päiväkoti sijaitsee taloyhtiön sisäpihalla. Asemanrannassa nautit loistavista ulkoilumahdollisuuksista.
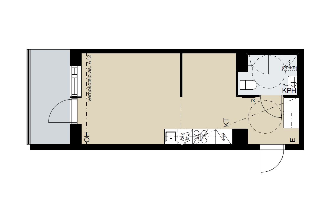
Hämeenlinnan Asemanrannassa asuntoja on 6 kerroksessa, yksiöistä kolmioihin. Asuntojen koot vaihtelevat kokoluokassa 21,5-43,5 m2.
Huolella valitut pintamateriaalit luovat kauniin pohjan sisustukselle
Tässä kesällä 2022 valmistuneessa kerrostalokodissa on vaaleat pinnat ja kalusteet. Arkea sujuvoittavat keittotilan laadukkaat kodinkoneet, joihin lukeutuvat keraaminen liesitaso, erillisuuni, liesituuletin, astianpesukone ja jääkaappi-pakastin. Laatoitetussa kylpyhuoneessa on liitäntä asukkaan omalle, 60 cm leveälle pyykinpesukoneelle. Kylpyhuoneessa jalat pitävät lämpimänä mukavuuslattialämmitys. Asunnossa on lasitettu parveke.
Ensimmäisen kuukauden vuokra -50 %
Tässä taloyhtiössä ensimmäinen vuokra on –50 %, kun sopimuksesi alkaa viimeistään 4.5.2026. Etu on voimassa uusille asiakkaille.
Taloyhtiössä monipuoliset palvelut
- Yhteiskäyttöauto
- Taloyhtiösauna
- Kuntoilutila
- iBoxen-pakettiautomaatti
- Ulkoiluvälinevarasto
- Irtaimistovarastot
- 100M Telian taloyhtiön laajakaista
- Digitaalinen iLOQ-avain
Auto käyttöön omalta kotipihalta? Joo'o. Tässä taloyhtiössä on yhteiskäyttöauto, jolla kuljetat isommat ostokset kotiin, hurautat harrastuksiin tai reissaat viikonlopun viettoon edulliseen hintaan.
Kotipihallasi on iBoxen-pakettiautomaatti, josta voit noutaa Matkahuollon kuljettamia verkkokauppaostoksia ja muita Matkahuollon kuljettamia paketteja kätevästi vuorokauden ympäri. Voit myös lähettää paketteja kaikkialle Suomeen Matkahuollon palvelupisteisiin, sekä ulkomaille. Pääset käyttämään iBoxenia, kun lataat itsellesi Matkahuolto Paketit -sovelluksen laitteesi sovelluskaupasta.
Taloyhtiössä jonotuksella lämmitystolpallisia autohallipaikkoja (70 €/kk) ja lämmitystolpallisia pihapaikkoja (40 €/kk). Kysy autopaikkojen saatavuus erikseen asunnon vuokraajalta.
Vuokrasopimuksen ehdot
Vuokrasopimus on toistaiseksi voimassa oleva. Vuokrasopimuksen ensimmäinen mahdollinen päättymispäivä on 12 kuukauden kuluttua. Edellytämme puhtaita luottotietoja ja tarkistamme vuokranmaksukyvyn.Laaja kotivakuutus vastuuosineen vaaditaan. Asukas tekee oman sähkösopimuksen valitsemansa sähköyhtiön kanssa.
Olisiko tässä uusi kotisi?
Varaa asunto itsellesi klikkaamalla "Vuokraa asunto" ja muuta uuteen huolettomaan kotiisi! Varausta tehdessä voit kertoa meille, haluatko käydä asuntonäytöllä ennen vuokrasopimuksen allekirjoittamista. Voit vuokrata asunnon myös videoesittelyllä tai kokonaan ilman näyttöä. Olemme sinuun yhteydessä mahdollisimman pian varauksesi vastaanottamisen jälkeen.
Miten voin auttaa?

Muita sinulle sopivia kohteita
Etkö löytänyt etsimääsi?






















