Modernit ja raikkaat sisustusvalinnat
Vuonna 2020 valmistuneessa kerrostalokodissa on ihanat suuret ikkunat, miellyttävät lautaparketti ja valkoisiksi maalatut seinät. Säilytystilaa löytyy komeroista. Taloyhtiön suojaisalla pihalla on vehreät oleskelu- ja leikkialueet sekä viherpeukaloille hyötypuutarha.
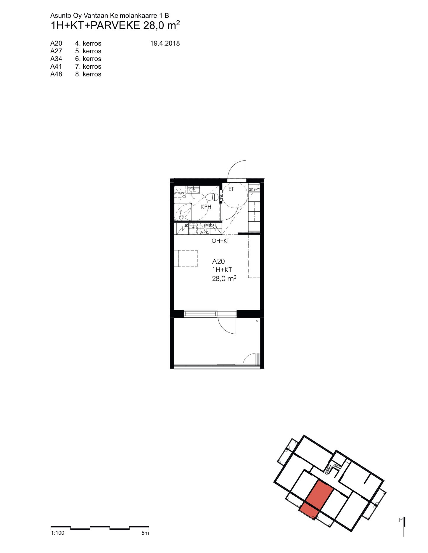
Arkea sujuvoittavat keittotilan laadukkaat kodinkoneet, joihin lukeutuvat keraaminen liesitaso ja erillinen kalusteuuni, astianpesukone ja jääkaappi pakastinlokerolla sekä ilmanvaihto-järjestelmään soveltuva liesikupu. Laatoitetussa kylpyhuoneessa on liitäntä asukkaan omalle, enintään 60 cm leveälle pyykinpesukoneelle. Asuntojen lämmityksenä on termostaatein ohjattu vesikiertoinen patterilämmitys, joka on liitetty kaukolämpöverkostoon. Kylpyhuoneissa on ns. sähköinen lattian mukavuuslämmitys, joka pitää jalat lämpiminä.
Joo Kotien asukkaana nautit myös näistä eduista:
- Vuokravakuus 0 €
- Toistaiseksi voimassa oleva vuokrasopimus
- Lemmikit tervetulleita
- Jooppi-asukassovelluksella hoidat helposti kaikki kotisi asiat
Luonnonläheinen Keimolanmäki sijaitsee Vantaan länsiosissa, Kivistön suuralueen Keimolan kaupunginosassa, vilkkaan Hämeenlinnanväylän länsipuolella. Sujuvien bussi- sekä junayhteyksien ansiosta pääset liikkumaan kätevästi myös ilman omaa autoa. Koiranomistajille ja lenkkeilijöille löytyy paljon hyviä ulkoilumaastoja.
Taloyhtiössä monipuoliset palvelut: saunaosasto, kuivaushuone ja hyvät varastotilat
Asukkaiden käytössä oleva taloyhtiön saunatila sijaitsee talon alakerrassa ja sen yhteydessä on vilvoitteluterassi sisäpihalle. Irtaimistovarastot ovat sijoitettu kätevästi talon ala- ja ullakkokerrokseen, osalla asunnoista on myös toinen varasto asuinkerroksessa. Ulkoiluvälinevarasto sijaitsee omana tilanaan taloyhtiön piha-alueella, josta on helppo hakea ja viedä pyörät ja lastenvaunut suojaan. Talon piha-alueilla on leikki- ja oleskelualue. Viherpeukaloille on myös mahdollisuus toteuttaa itseään pienimuotoisessa hyötypuutarhassa.
Taloyhtiön palvelut
- Mediamaksuun sisältyy 10 megan nettiyhteys
- Saunaosasto
- Kuivaushuone
- Varastotilat
- Lastenvaunuvarasto
- Ulkoiluvälinevarasto
Vuokrasopimuksen ehdot
Sopimuksen ensimmäinen mahdollinen päättymispäivä on kuuden (6) kuukauden kuluttua. Edellytämme puhtaita luottotietoja ja tarkistamme vuokranmaksukyvyn. Laaja kotivakuutus vastuuosineen vaaditaan. Asukas tekee oman sähkösopimuksen valitsemansa sähköyhtiön kanssa.
Olisiko tässä uusi kotisi?
Varaa asunto itsellesi klikkaamalla "Vuokraa asunto" ja muuta uuteen huolettomaan kotiisi! Varausta tehdessä voit kertoa meille, haluatko käydä asuntonäytöllä ennen vuokrasopimuksen allekirjoittamista. Olemme sinuun yhteydessä mahdollisimman pian varauksesi vastaanottamisen jälkeen.
Miten voin auttaa?

Muita sinulle sopivia kohteita
Etkö löytänyt etsimääsi?













