Kotipihalta vaivattomasti minne vain
Asunto Oy Oulun Fenderi sijaitsee Toppilansalmessa, joka on moderni ja siisti asuinalue, keskustan ja Oulun yliopiston täydellisessä välimaastossa.
Joo Kotien asukkaana nautit myös näistä eduista:
- Vuokravakuus 0 €
- Lemmikit tervetulleita
- Jooppi-asukassovelluksella hoidat helposti kaikki kotisi asiat
- Joo-tiimi aina apunasi
Pyörällä ajat keskustan sykkeeseen tai yliopistolle alle 15 minuutissa. Nallikarin uimarannalle ei ole pitkä matka ja liikuntamahdollisuudetkin lähellä. Julkiset kulkuyhteydet menevät ihan talon vierestä ja asukkaiden käytössä on taloyhtiön oma yhteiskäyttöauto!
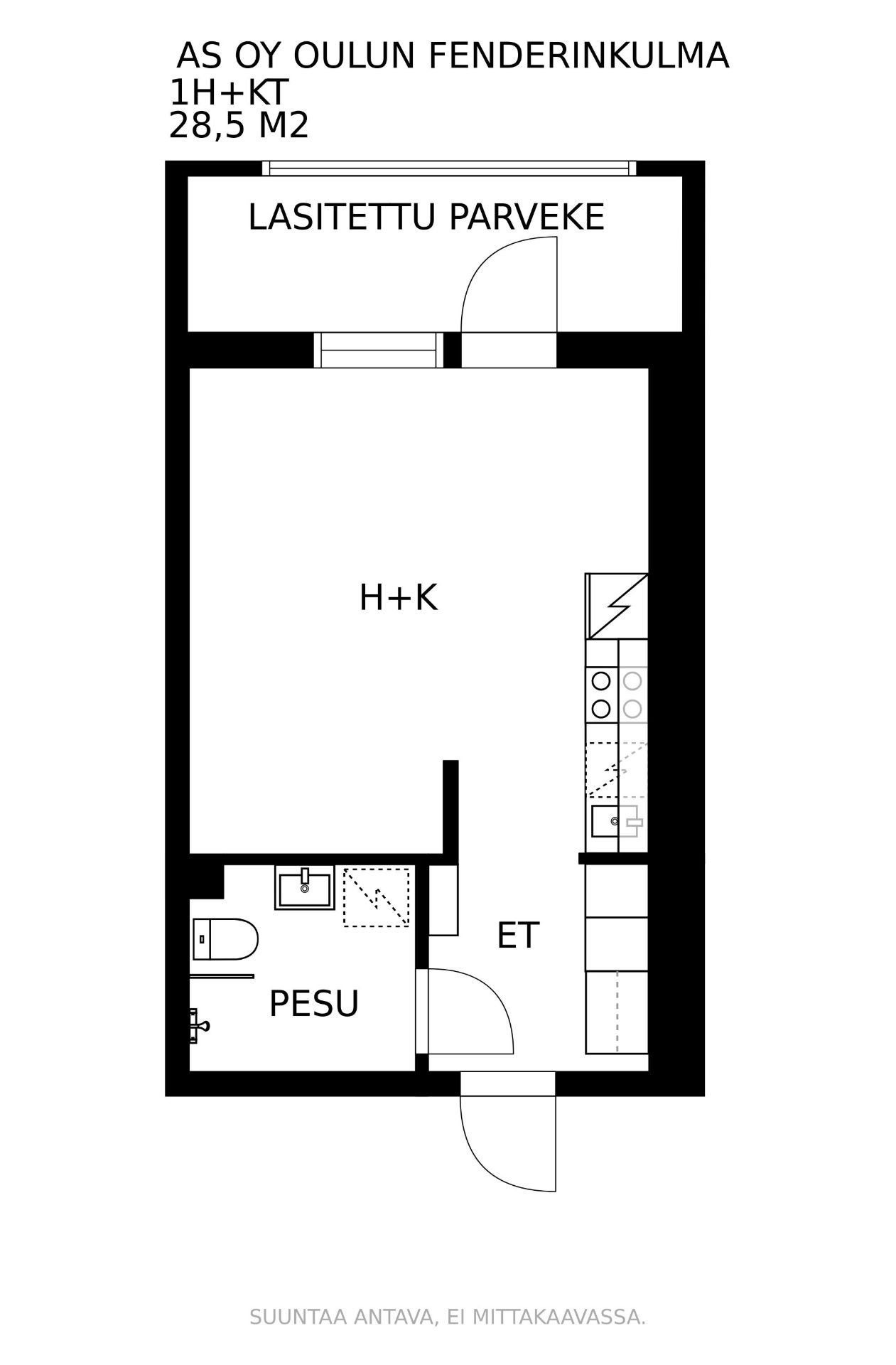
Oulun Fenderissä on yksiöitä neljässä kerroksessa. Asuntojen koot vaihtelevat kokoluokassa 24-28,5 m2.
Valoisat asunnot lasitetuilla parvekkeilla
Tämä vuonna 2020 valmistunut yksiö on valoa tulvillaan. Vaaleat pinnat tekevät kodista raikkaan ja fiksusti suunnitellun pohjan ansiosta saat mahtumaan kotiisi kaiken tarvittavan. Huolettoman arjen takaavat laadukkaat kodinkoneet ja toimivat säilytysratkaisut. Tilava lasitettu parveke tuo kotiisi yhden huoneen lisää, johon voit rakentaa oman olohuoneen.
Keittotilassa erillisuuni ja kahden keittoalueen induktioliesitaso, jääpakastinkaappi ja astianpesukone. Kylpyhuoneessa tila pyykinpesukoneelle ja mukavuutena sähköinen, asukkaan itse säädettävä lattialämmitys.
Taloyhtiössä monipuoliset palvelut
- Joo Pesula (vain Mallastie 30 asukkaille, sijaitsee osoitteessa Satamatie 13)
- Kuivaushuone
- Ulkoiluvälinevarasto
- Irtaimistovarastot
- Yhteiskäyttöauto
- 100M Telian taloyhtiön laajakaista
- Digitaalinen iLOQ-avain
Tämän taloyhtiön asukkaana käytössäsi on yhteiskäyttöauto, jolla kuljetat isommat ostokset kotiin, hurautat harrastuksiin tai reissaat viikonlopun viettoon edulliseen hintaan. Yhteiskäyttöautot sijaitsevat sisäpihalla osoitteessa Satamatie 5.
Taloyhtiössä saatavilla autopaikkoja. Tolpallinen pihapaikka 30€ / kk, tolpallinen katospaikka 50€ / kk, autohallipaikka 59€ / kk. Kysy autopaikkojen saatavuus erikseen asunnon vuokraajalta.
Vuokrasopimuksen ehdot
Kun vuokraat tämän asunnon, tarjoamme sinulle yhden kuukauden vuokran –50%. Vuokrasopimuksen tulee alkaa viimeistään 1.6.2026. Vuokrasopimus on toistaiseksi voimassa oleva. Kampanjasopimuksen ensimmäinen mahdollinen päättymispäivä on kahdentoista (12) kuukauden kuluttua. Asunnon voi vuokrata myös ilman kampanjaetua, jolloin sopimuksen ensimmäinen mahdollinen päättymispäivä on kuuden (6) kuukauden kuluttua. Kampanja-ajan ulkopuolelle tehtyjen sopimusten ensimmäinen päättymispäivä on kahdentoista (12) kuukauden kuluttua. Edellytämme puhtaita luottotietoja ja tarkistamme vuokranmaksukyvyn. Laaja kotivakuutus vastuuosineen vaaditaan. Asukas tekee oman sähkösopimuksen valitsemansa sähköyhtiön kanssa.
Olisiko tässä uusi kotisi?
Varaa asunto itsellesi klikkaamalla "Vuokraa asunto" ja muuta uuteen huolettomaan kotiisi! Varausta tehdessä voit kertoa meille, haluatko käydä asuntonäytöllä ennen vuokrasopimuksen allekirjoittamista. Voit vuokrata asunnon myös videoesittelyllä tai kokonaan ilman näyttöä. Olemme sinuun yhteydessä mahdollisimman pian varauksesi vastaanottamisen jälkeen.
Miten voin auttaa?
Muita sinulle sopivia kohteita
Etkö löytänyt etsimääsi?















