Huoletonta vuokra-asumista Henttaalla
Huoleton yksiö koko asunnon levyisellä lasitetulla parvekkeella Espoon keskeisellä Henttaan alueella, jossa sekä palvelut että julkiset ovat lähellä.
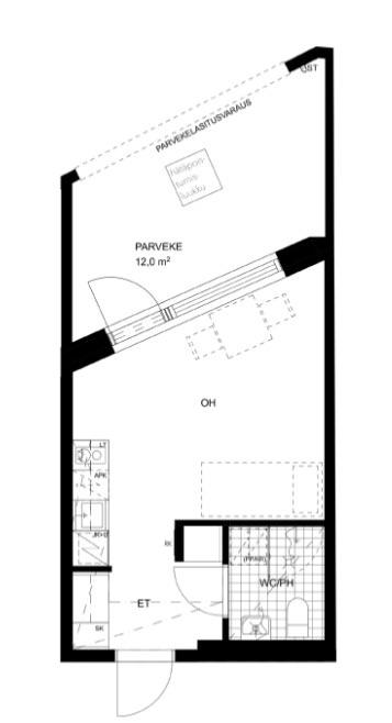
Huom. Asunnon kuvat naapuri taloyhtiön saman tyylisestä asunnosta. Pohjakuva vastaa asuntoa.
Joo Kotien asukkaana nautit myös näistä eduista:
- Vuokravakuus 0 €
- Lemmikit tervetulleita
- Jooppi-asukassovelluksella hoidat helposti kaikki kotisi asiat
- Joo-tiimi aina apunasi
As Oy Espoon Altto on valmistunut vuonna 2022 Espoon sydämeen Henttaanlaaksoon, Lillhemtin puiston kupeeseen muun muassa Opinmäen kampuksen sekä monipuolisen palvelukattauksen lähistölle. Kehä II ja Turunväylä kulkevat alueen läheisyydessä. Myös Suurpellon monipuoliset palvelut ovat taloyhtiön läheisyydessä.
Ajattomat ja laadukkaat materiaalivalinnat sekä korkea huonekorkeus luovat kauniin pohjan sisustukselle
Tämä moderni asunto muodostuu laadukkaista materiaaleista ja varusteista sekä ainutlaatuisen korkeasta huonekorkeudesta, joka yhdistetään suuriin, lattiasta kattoon saakka ulottuviin ikkunoihin. Keittiön kalusteet ovat Topi-keittiöiltä ja kylpyhuoneen laatat Laatapisteeltä. Oma lasitettu parveke on koko asunnon levyinen ja viihtyisä.
Keittiössä on upotetut kodinkoneet; astianpesukone, jääkaappi pakastinlokerolla, liesitaso, liesikupu sekä kalusteuuni. Vesikiertoinen lattialämmitys parketin alla luo luksusta asumiseen. Vaaleassa, laatoitetussa kylpyhuoneessa tila pyykinpesukoneelle.
Taloyhtiön kattavat palvelut sisältävät muun muassa ylimmän kerroksen saunan sekä taloyhtiön laajakaistan
- Ylimmän kerroksen saunaosasto
- Pesutupa
- 10M Telian taloyhtiön laajakaista
- Irtaimistovarastot
Talon ylimmässä kerroksessa on upea saunaosasto talon, josta avarat näkymät peltojen yli.
Taloyhtiössä on myös pesula- ja kuivaustilat, eli oma pyykinpesukone ei ole välttämätön hankinta.
Mediamaksuun sisältyy taloyhtiön 10M laajakaista.
Jokaiselle asunnolle on oma lämmin varastotila. Taloyhtiöllä on myös kerhotila käytössä, jonka voi vuokrata vaikka juhlia tai etätyöskentelyä varten.
Vuokrasopimuksen ehdot
Vuokrasopimus on toistaiseksi voimassa oleva. Vuokrasopimuksen ensimmäinen mahdollinen päättymispäivä on kahdentoista (12) kuukauden kuluttua. Edellytämme puhtaita luottotietoja ja tarkistamme vuokranmaksukyvyn. Laaja kotivakuutus vastuuosineen vaaditaan. Asukas tekee oman sähkösopimuksen valitsemansa sähköyhtiön kanssa.
Olisiko tässä uusi kotisi?
Varaa asunto itsellesi klikkaamalla "Vuokraa asunto" ja muuta uuteen huolettomaan kotiisi! Varausta tehdessä voit kertoa meille, haluatko käydä asuntonäytöllä ennen vuokrasopimuksen allekirjoittamista. Voit vuokrata asunnon myös videoesittelyllä tai kokonaan ilman näyttöä. Olemme sinuun yhteydessä mahdollisimman pian varauksesi vastaanottamisen jälkeen.
Miten voin auttaa?
Muita sinulle sopivia kohteita
Etkö löytänyt etsimääsi?



















