Huoletonta vuokra-asumista Espoon Saunalahdessa
Vuonna 2021 valmistunut tehoneliöinen yksiö omalla pihalla etsii uutta asukasta. Ensimmäisen kerroksen rauhallinen asunto, ja taloyhtiön erinomainen sijainti takaa pääsyn töihin ja harrastuksiin huolettomasti.
Joo Kotien asukkaana nautit myös näistä eduista:
- Vuokravakuus 0 €
- Lemmikit tervetulleita
- Jooppi-asukassovelluksella hoidat helposti kaikki kotisi asiat
- Joo-tiimi aina apunasi
Espoon Saunalahti on kasvanut isohkoksi ja halutuksi asuinalueeksi Espoossa viime vuosien aikana, eikä ihme. Meri on noin kilometrin päässä ja hyvät palvelut alueella takaavat oivan asuinpaikan kaikenikäisille ihmisille. Lähellä kulkevan länsiväylän kautta kurvaat vaikka Iso-Omenan ostoskeskukseen alle kymmenessä minuutissa. Kivenlahden metroasemakin on noin 1.5 km päässä. Lähin kauppa, hiljattain uudistunut S-market oheispalveluineen sijaitsee aivan talon edustalla.
Ajattomat ja laadukkaat materiaalivalinnat sekä korkea huonekorkeus luovat kauniin pohjan sisustukselle
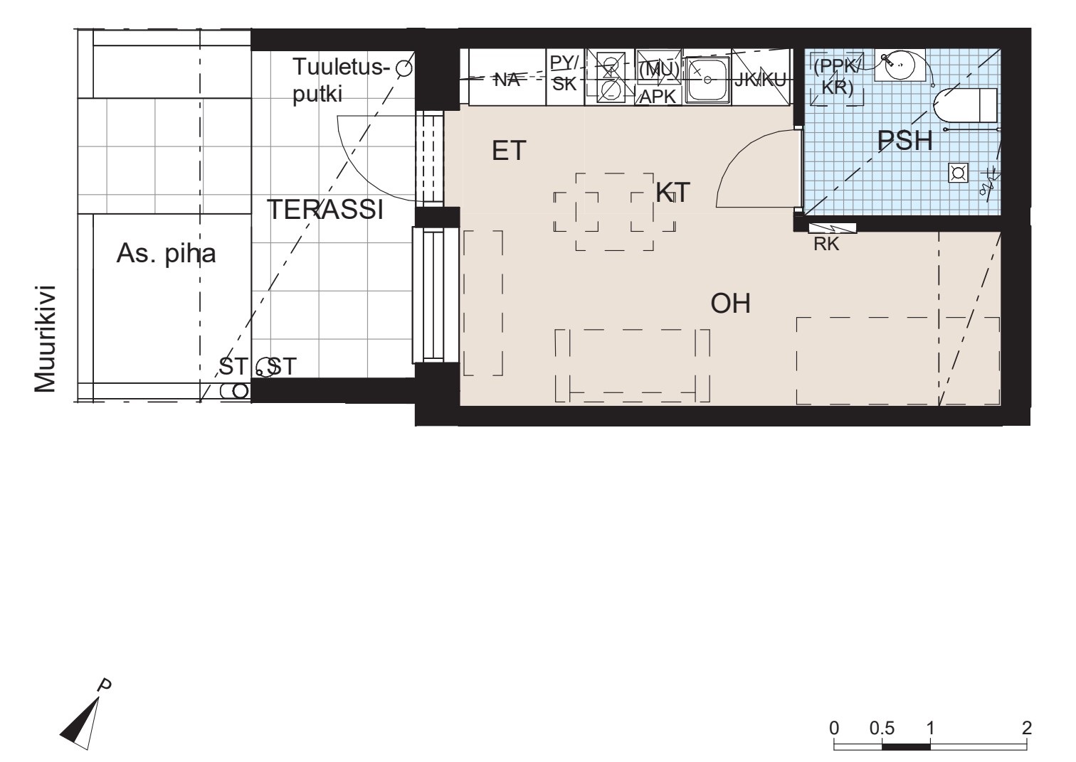
Tämä moderni asunto muodostuu laadukkaista materiaaleista ja varusteista. Lattiana on kaunis tammilautaparketti, ja seinät sekä keittiön pinnat ovat vaaleat.
Keittiössä ja eteisessä on hyvin säilytystilaa, ja asunnon valoisuuden takaa suuri lähes lattiasta kattoon ulottuva ikkuna. Keittiössä on kahden levyn keraaminen liesitaso, kalusteeseen upotettu erillisuuni, liesikupu ja astianpesukone sekä jääkaappi pakastinlokerolla.
Ikkunassa on sälekaihtimet. Asunnossa vesikiertoinen lattialämmitys. Kylpyhuoneessa on paikkavaraus pyykinpesukoneelle.
Taloyhtiön kattavat palvelut sisältävät muun muassa ylimmän kerroksen saunan sekä taloyhtiön laajakaistan
- Sauna
- Pesutupa
- 10M taloyhtiön laajakaista
- Ulkoiluvälinevarasto
- Lastenvaunuvarasto
Taloyhtiö jakaa naapuritaloyhtiön kanssa saunatilan sekä pesutuvan kuivaushuoneella.
Mediamaksuun sisältyy 10M taloyhtiölaajakaista.
Jokaiselle asunnolle kuuluu oma lämmin irtaimistovarasto.
Vuokrasopimuksen ehdot
Vuokrasopimus on toistaiseksi voimassa oleva. Vuokrasopimuksen ensimmäinen mahdollinen päättymispäivä on kahdentoista (12) kuukauden kuluttua. Edellytämme puhtaita luottotietoja. Laaja kotivakuutus vastuuosineen vaaditaan. Asukas tekee oman sähkösopimuksen valitsemansa sähköyhtiön kanssa.
Olisiko tässä uusi kotisi?
Varaa asunto itsellesi klikkaamalla "Vuokraa asunto" ja muuta uuteen huolettomaan kotiisi! Varausta tehdessä voit kertoa meille, haluatko käydä asuntonäytöllä ennen vuokrasopimuksen allekirjoittamista. Voit vuokrata asunnon myös videoesittelyllä tai kokonaan ilman näyttöä. Olemme sinuun yhteydessä mahdollisimman pian varauksesi vastaanottamisen jälkeen.














