Huoletonta vuokra-asumista pidetyltä Metsokankaan alueelta
Oulun Vuokko sijaitsee Kaakkurin erinomaisten palveluiden lähistöllä. Alueella muun muassa kirjasto, lääkäripalvelut ja hyvät ulkoilumaastot. Kävelymatkan päästä löydät kattavan hiihto- ja kuntopolkureitistön. Monipuolinen ja kehittyvä Kaakkurin liikuntamaa on vain 2 km päässä. Alueelta pääsee Oulun keskustaan helposti moottoritietä pitkin.
Joo Kotien asukkaana nautit myös näistä eduista:
- Vuokravakuus 0 €
- Lemmikit tervetulleita
- Jooppi-asukassovelluksella hoidat helposti kaikki kotisi asiat
- Joo-tiimi aina apunasi
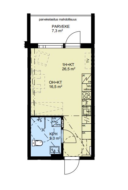
Modernissa asunnossa on hyvä varustelutaso
Vuonna 2018 valmistuneessa kerrostalokodissa on laadukas laminaattilattia sekä vaaleaksi maalatut seinät. Säilytystilaa löytyy hyvin asunnon eteisestä. Asunnosta riippuen parveke tai ranskalainen parveke, katsothan pohjakuvasta.
Arkea sujuvoittavat keittotilan laadukkaat kodinkoneet, joihin lukeutuvat keraaminen liesi, astianpesukone ja jääkaappipakastin sekä tilavaraus mikroaaltouunille. Laatoitetussa kylpyhuoneessa on liitäntä asukkaan omalle, enintään 60 cm leveälle pyykinpesukoneelle. Kylpyhuoneessa on ns. sähköinen lattian mukavuuslämmitys. Asunnossa myös koneellinen tulo- ja poistoilmanvaihto.
Taloyhtiössä kaikki tarpeellinen
- Irtaimistovarastot
- Pyöräkatos taloyhtiön pihalla
- 25M DNA taloyhtiölaajakaista
- Taloyhtiö on esteetön
Kohteessa tolpallinen autopaikkamahdollisuus 40 €/kk. Kysy autopaikkojen saatavuus erikseen asunnon vuokraajalta.
Vuokrasopimuksen ehdot
Vuokrasopimus on toistaiseksi voimassa oleva, yhden kalenterikuukauden irtisanomisajalla. Sopimuksen ensimmäinen mahdollinen päättymispäivä on kahdentoista (12) kuukauden kuluttua. Edellytämme puhtaita luottotietoja ja tarkistamme vuokranmaksukyvyn. Laaja kotivakuutus vastuuosineen vaaditaan. Asukas tekee oman sähkösopimuksen valitsemansa sähköyhtiön kanssa.
Olisiko tässä uusi kotisi?
Varaa asunto itsellesi klikkaamalla "Vuokraa asunto" ja muuta uuteen huolettomaan kotiisi! Varausta tehdessä voit kertoa meille, haluatko käydä asuntonäytöllä ennen vuokrasopimuksen allekirjoittamista. Voit vuokrata asunnon myös videoesittelyllä tai kokonaan ilman näyttöä. Olemme sinuun yhteydessä mahdollisimman pian varauksesi vastaanottamisen jälkeen.
Miten voin auttaa?
Muita sinulle sopivia kohteita
Etkö löytänyt etsimääsi?










