Huoletonta vuokra-asumista Turun Kaskenpolttajassa, palveluiden äärellä
Turku on Suomen vanhin kaupunki, jossa riittää historiallisia nähtävyyksiä ja modernia kaupunkikulttuuria. Kotisi sijaitsee sopivalla etäisyydellä ydinkeskustasta, sillä sinun ei tarvitse valita oman rauhan ja palveluiden välillä - meiltä saat molemmat. Läheltäsi löytyvät muun muassa Turun linna, satama ja Ruissalon merelliset maisemat. Parin kilometrin matka keskustaan taittuu nopeasti pyörällä tai bussilla.
Joo Kotien asukkaana nautit myös näistä eduista:
- Vuokravakuus 0 €
- Lemmikit tervetulleita
- Jooppi-asukassovelluksella hoidat helposti kaikki kotisi asiat
- Joo-tiimi aina apunasi
- Yhteiskäyttöauto
Taloyhtiö sijaitsee rauhallisella ja idyllisellä Luolavuoren alueella.
Taloyhtiö muodostuu kahdesta kolmikerroksisesta talosta. Asuntojen koot vaihtelevat 28m2- 61m2.
Moderni taloyhtiö sijaitsee lähellä kupittaan kampusta ja sairaalaa, noin kilometrin päässä Kupittaan Citymarketista. Turun keskustan palveluihin matkaa vajaa kaksi kilometriä, Turun keskustaan bussilla matka kestää noin kymmenen minuuttia.
Sujuva julkinen liikenne sekä lyhyet etäisyydet palvelujen äärelle tekevät arjestasi huoletonta.
Modernit ja raikkaat sisustus valinnat
Kurkkaathan asunnon esittelyn videot kohdasta.
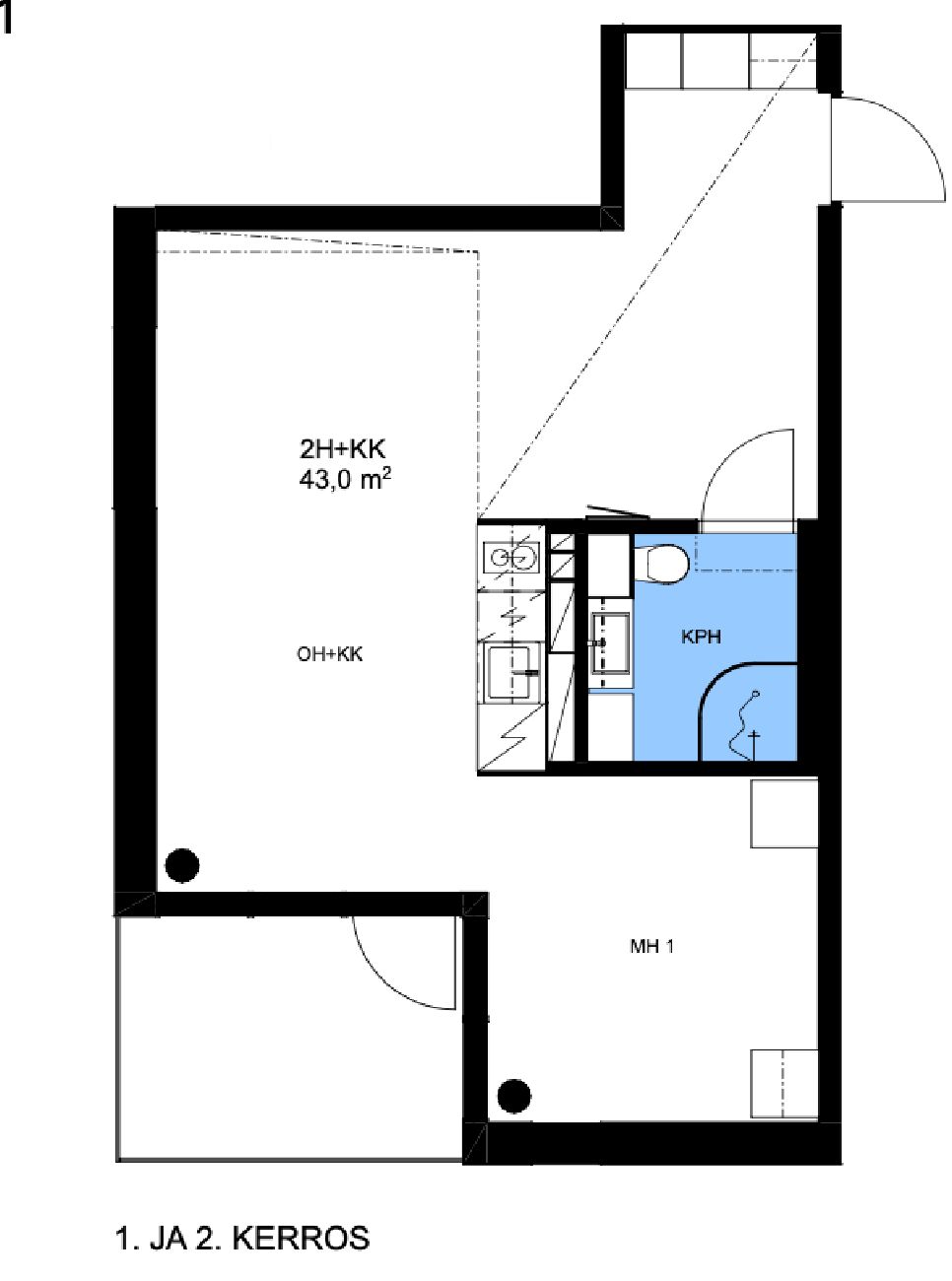
Vuonna 2019 valmistuneessa kerrostalokodissa on ihanat suuret ikkunat, miellyttävät laminaatti lattiat ja valkoisiksi maalatut seinät luovat kauniin pohjan sisustuksellesi. Tässä asunnossa on toimiva pohjaratkaisu, jonka ansiosta saat mahtumaan kotiisi kaiken tarvittavan.
Arkea sujuvoittavat keittotilan laadukkaat integroidut kodinkoneet, joihin lukeutuvat keraaminen liesi, astianpesukone, mikroaaltouuniyhdistelmä ja jääkaappi pakastinlokerolla.
Laatoitetussa kylpyhuoneessa on liitäntä asukkaan omalle, enintään 60 cm leveälle pyykinpesukoneelle. Asuntojen lämmityksenä on termostaatein ohjattu vesikiertoinen lattialämmitys. Pesuhuoneessa on mukavuuslattialämmitys tuomassa asumisviihtyvyyttä.
Taloyhtiössä monipuoliset palvelut
- Viihtyisä saunatila
- Irtaimistovarastot
- 100M Telian taloyhtiön laajakaista
- Taloyhtiö on esteetön ja savuton
- Omago yhteiskäyttöauto
Auto käyttöön omalta kotipihalta? Joo'o. Tässä taloyhtiössä on yhteiskäyttöauto, jolla kuljetat isommat ostokset kotiin, hurautat harrastuksiin tai reissaat viikonlopun viettoon edulliseen hintaan.
Taloyhtiössä lämmitystolpallisia autopaikkoja 30 €/kk. Kysy autopaikkojen saatavuus erikseen asunnon vuokraajalta.
Vuokrasopimuksen ehdot
Vuokrasopimus on toistaiseksi voimassa oleva. Sopimuksen ensimmäinen mahdollinen päättymispäivä on 12 kuukauden kuluttua. Edellytämme puhtaita luottotietoja. Laaja kotivakuutus vastuuosineen vaaditaan. Asukas tekee oman sähkösopimuksen valitsemansa sähköyhtiön kanssa.
Olisiko tässä uusi kotisi?
Varaa asunto itsellesi klikkaamalla "Vuokraa asunto" ja muuta uuteen huolettomaan kotiisi! Varausta tehdessä voit kertoa meille, haluatko käydä asuntonäytöllä ennen vuokrasopimuksen allekirjoittamista. Voit vuokrata asunnon myös videoesittelyllä tai kokonaan ilman näyttöä. Olemme sinuun yhteydessä mahdollisimman pian varauksesi vastaanottamisen jälkeen.



















