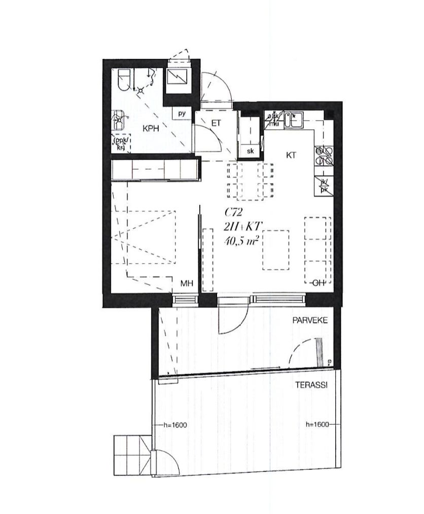
Huolella valitut pintamateriaalit luovat kauniin pohjan sisustukselle
Kauniista keittiöstä löytyvät kalusteuuni, keittotaso, jääkaappipakastin ja integroidut astianpesukone ja mikroaaltouuni. Myös liesikupu on tyylikkäästi linjassa keittiökalusteiden kanssa, ja kiinteät led-valot luovat kaunista tunnelmaa.
Asunnon lattiassa on tammiparketti, ja miellyttävä lattialämmitys. Ikkunoissa on sälekaihtimet sekä katossa verhokiskot. Suuret ikkunat takaavat valoisuuden asunnossa. Lasiset suihkuseinät kääntyvät tilaa säästävästi ja säilytystilaa löytyy allaskalustesetistä.
Tikkurilassa nautit todella kattavista palveluista
Tikkurilan alueen asukkaana nautit niin kauppakeskusten kuin pienempienkin liikkeiden palveluista, sekä urheilupaikkojen suomista liikuntamahdollisuuksista. Mm uimahalli, kirjasto, päiväkodit, ammattikorkeakoulu ja lukio löytyvät aivan kivenheiton päästä. Junalla ja busseilla pääset suuntaan kuin suuntaan. Tikkurilan asemalta Helsingin ydinkeskustaan matka vain 12 minuuttia. Kattavat palvelut sekä laajat kulkuyhteydet tekevät Vantaan Huvikummun kodeista sopivat moneen elämäntilanteeseen.
Joo Kotien asukkaana nautit myös näistä eduista:
- Vuokravakuus 0 €
- Lemmikit tervetulleita
- Jooppi-asukassovelluksella hoidat helposti kaikki kotisi asiat
Ekologinen taloyhtiö
As Oy Vantaan Huvikumpu on puusta ja muista ekologisista materiaaleista rakennettu yhtiö, jonka asunnot ovat suunniteltu pitkäaikaisiksi kodeiksi järkevillä pohjaratkaisuilla ja modernilla varustelulla. Puutalon rakennusmateriaalipäästöt ovat betonitaloa keveämpiä. Talon energialuokka on A ja katolta löytyvät aurinkopaneelit. Kaukolämpöinen lattialämmitys ja huoneistokohtainen ilmanvaihtolaite. Taloyhtiöstä löytyvät kerhohuone, sauna, huoneistokohtaiset varastokopit, ulkoiluvälinevarastot sekä pesutupa ja kuivaushuone, sekä viihtyisä sisäpiha-alue.
Taloyhtiössä monipuoliset palvelut
- Kerhohuone
- Saunaosasto
- Ulkovälinevarasto
- Irtainvarasto
- Pesula
Vuokrasopimuksen ehdot
Vuokrasopimus on toistaiseksi voimassa oleva. Sopimuksen ensimmäinen mahdollinen päättymispäivä on kuuden (6) kuukauden kuluttua. Edellytämme puhtaita luottotietoja ja tarkistamme vuokranmaksukyvyn. Laaja kotivakuutus vastuuosineen vaaditaan. Asukas tekee oman sähkösopimuksen valitsemansa sähköyhtiön kanssa.
Olisiko tässä uusi kotisi?
Varaa asunto itsellesi klikkaamalla "Vuokraa asunto" ja muuta uuteen huolettomaan kotiisi! Varausta tehdessä voit kertoa meille, haluatko käydä asuntonäytöllä ennen vuokrasopimuksen allekirjoittamista. Olemme sinuun yhteydessä mahdollisimman pian varauksesi vastaanottamisen jälkeen.
Miten voin auttaa?

Muita sinulle sopivia kohteita
Etkö löytänyt etsimääsi?






















