Skandinaavisen vaaleat sisustusvalinnat
Asunnossa on avokeittiö, joka on varusteltu nykyaikaisin kodinkonein sisältäen muun muassa astianpesukoneen sekä keraamisen lieden. Upeat isot ikkunat tuovat asuntoon luonnollista valoa. Kylpyhuoneessa on tilavaraus omalle pyykinpesukoneelle. Asumismukavuutta entisestään lisäävät vesikiertoinen lattialämmitys sekä koneellinen ilmanvaihto. Suurien ikkunoiden lisäksi valoisuutta lisäävät asunnon vaaleat värit sekä seinissä että kodinkoneissa, mutta myös vaaleahko lautaparkettilattia. Asunnossa on ranskalainen parveke.
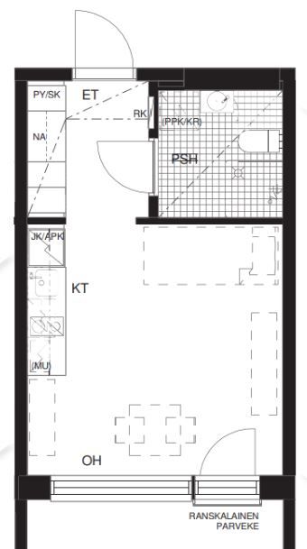
Huom. kuvat suuntaa antavia. Keittiön värityyli on tumma. Video kyseisestä asunnosta.
Huoletonta vuokra-asumista Asolan luonnonläheisellä asuinalueella
Asola on osa Koivukylän suuraluetta, Itä-Vantaan keskiössä, jossa arki sujuu mutkattomasti ja kaikki tarpeellinen on lähellä. Sujuvien liikenneyhteyksien ansiosta liikkuminen onnistuu vaivattomasti myös ilman omaa autoa.
Ulkoilun ja luonnon ystäville alue tarjoaa monipuoliset lenkkeilymaastot ja viihtyisät puistoalueet. Lähialueen omia palveluita täydentävät Koivukylän, Korson ja Tikkurilan monipuoliset palvelukeskittymät.
Rekolan asemalta pääset junalla vain kuudessa minuutissa Tikkurilan moderniin asemakeskukseen, jossa odottavat kahvilat, ravintolat sekä kymmenet liikkeet ja palvelut. Junayhteydet pääradalla ja kehäradalla tekevät liikkumisesta nopeaa ja helppoa, ja lähijunat tuovat koko pääkaupunkiseudun ulottuvillesi. Myös bussiyhteydet Asolanväylää pitkin palvelevat sujuvasti eri suuntiin.
Asola on täydellinen valinta sinulle, joka arvostat rauhallista asumista, luonnon läheisyyttä ja hyviä yhteyksiä kaikkialle pääkaupunkiseudulle.
Joo Kotien asukkaana nautit myös näistä eduista:
- Vuokravakuus 0 €
- Lemmikit tervetulleita
- Jooppi-asukassovelluksella hoidat helposti kaikki kotisi asiat
- Joo-tiimi on aina apunasi
Taloyhtiössä monipuoliset palvelut: kerhotila ja hyvät varastotilat
- Mediamaksuun sisältyy 10 megan nettiyhteys
- Lastenvaunuvarasto
- Väestönsuoja
- Varastotilat
- Ulkovälinevarastot
Vuokrasopimuksen ehdot
Vuokrasopimus on toistaiseksi voimassa oleva. Sopimuksen ensimmäinen mahdollinen päättymispäivä on kuuden (6) kuukauden kuluttua. Edellytämme puhtaita luottotietoja ja tarkistamme vuokranmaksukyvyn. Laaja kotivakuutus vastuuosineen vaaditaan. Asukas tekee oman sähkösopimuksen valitsemansa sähköyhtiön kanssa.
Olisiko tässä uusi kotisi?
Varaa asunto itsellesi klikkaamalla "Vuokraa asunto" ja muuta uuteen huolettomaan kotiisi! Varausta tehdessä voit kertoa meille, haluatko käydä asuntonäytöllä ennen vuokrasopimuksen allekirjoittamista. Olemme sinuun yhteydessä mahdollisimman pian varauksesi vastaanottamisen jälkeen.
Miten voin auttaa?
Muita sinulle sopivia kohteita
Etkö löytänyt etsimääsi?














