Etusivu > 
oulu > 
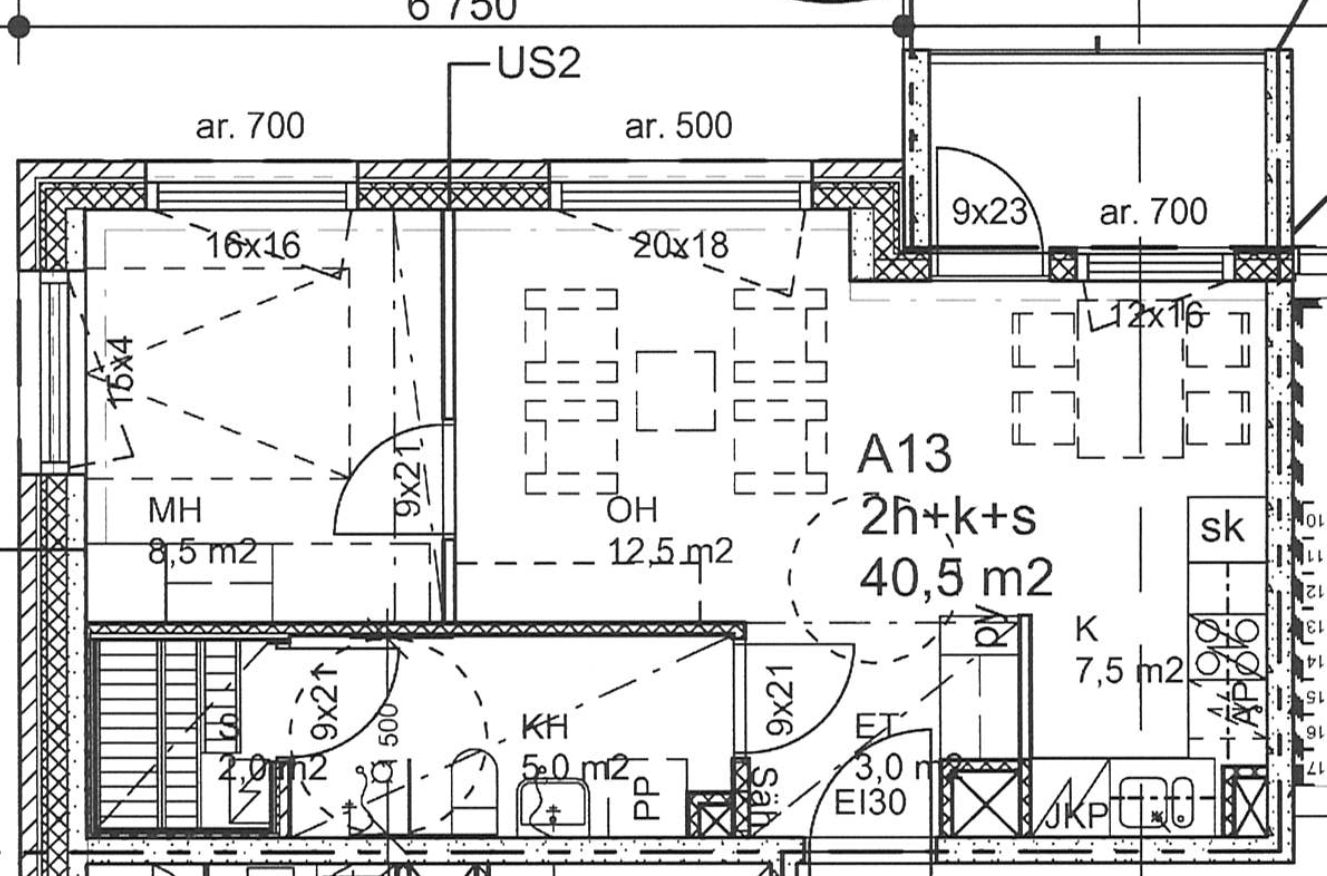
a-13

Rautionkatu 5 A 13

2h+k+kph+S+l.parv
Vuokra
729 €/kk
Pinta-ala
40,5 m²
Kerros
3/5
Rakennusvuosi
2011
Vapautuu
Vuokrattu
Vakuus
0 €
Saunallinen kaksio fiksulla pohjaratkaisulla!

Etu-Lyötyssä elämää Oulun keskustan porteilla


Nauti huolettomasta vuokra-asumisesta Etu-Lyötyn sydämessä! Etu-Lyötty on suosittu asuinalue noin puolen kilometrin päässä Oulun keskustan palveluista.

Asuinalueena Etu-Lyötty on otollinen monessakin suhteessa: Oulun keskustaan matkaa on alle 1 km, hyvät liikenneyhteydet Limingankadun varrelta, läheltä löytyy paljon palveluita, ruokakauppoja sekä liikuntakeskuksia. Kävelymatkan päässä ovat niin Crossfit -sali, aktiviteettipuisto SuperPark, Kamppailuklubi, useita kuntosaleja sekä monipuoliset harrastusmahdollisuuden Heinäpäässä


Joo Kotien asukkaana nautit myös näistä eduista:

  • Vuokravakuus 0 €
  • Lemmikit tervetulleita
  • Jooppi-asukassovelluksella hoidat helposti kaikki kotisi asiat
  • Joo-tiimi aina apunasi


Kodikkaita kaupunkikoteja


Keittotilassa uuni ja liesitaso, jääkaappi-pakastin ja astianpesukone. Kylpyhuoneessa on liitäntämahdollisuus pyykinpesukoneelle. Lisää mukavuutta asuntoon tuo oma sauna sekä lasitettu parveke, josta on näkymät viereisen talonyhtiön sisäpihalle.

Asunnon pohjakuva on vastaavasta eri kerroksen asunnosta.



Hyvin huolletusta talonyhtiöstä oma koti


Jokaisessa asunnossa on huoneistokohtainen ilmanvaihto, ja lämpöä asuntoihin antavat kaukolämmöllä toimivat vesikiertoiset patterit. Taloyhtiössä on lisäksi yhteinen pyykkien kuivaushuone, väestönsuoja, ulkoiluvälinevarasto ja huoneistokohtaiset varastot.

Talosta on suora kulkuyhteys lämpimään autohalliin. Kysy autopaikkojen tarkempaa saatavuutta vuokraajalta.


Vuokrasopimuksen ehdot


Vuokrasopimus on toistaiseksi voimassa oleva, yhden kalenterikuukauden irtisanomisajalla. Sopimuksen ensimmäinen mahdollinen päättymispäivä on kahdentoista (12) kuukauden kuluttua. Edellytämme puhtaita luottotietoja. Laaja kotivakuutus vastuuosineen vaaditaan. Asukas tekee oman sähkösopimuksen valitsemansa sähköyhtiön kanssa.


Olisiko tässä uusi kotisi?


Varaa asunto itsellesi klikkaamalla "Vuokraa asunto" ja muuta uuteen huolettomaan kotiisi! Varausta tehdessä voit kertoa meille, haluatko käydä asuntonäytöllä ennen vuokrasopimuksen allekirjoittamista. Voit vuokrata asunnon myös videonäytön perusteella tai kokonaan ilman näyttöä. Olemme sinuun yhteydessä mahdollisimman pian varauksesi vastaanottamisen jälkeen.

Miten voin auttaa?

Jos haluat nähdä asunnon, varaa se ensin, niin otamme sinuun yhteyttä näytöstä.
Henna
+358400212713(Arkisin klo 9-16)

As Oy Oulun Romeo

Etkö löytänyt etsimääsi?

Ota meihin yhteyttä ja vuokraustiimimme pitää huolen, että pääset uuteen kotiin mahdollisimman nopeasti ja vaivattomasti.
image