Vanhatullissa kaikki palvelut kävelyetäisyydellä
Asunto Oy Oulun Artesaani on Oulun Vanhatulliin vuonna 2017 valmistunut kerrostalo, joka sijaitsee vain vajaa kilometrin päässä Oulun keskustan sykkeestä. Läheltäsi löytyy kuntosaleja, lähikauppoja ja keskustan palveluihin ei ole pitkästi. Citybussi kulkee ihan talon nurkalta, ja Limingantien kulkuyhteydet ovat aivan vierelläsi.
Joo Kotien asukkaana nautit myös näistä eduista:
- Vuokravakuus 0 €
- Lemmikit tervetulleita
- Jooppi-asukassovelluksella hoidat helposti kaikki kotisi asiat
- Joo-tiimi on aina apunasi
- Savuton taloyhtiö
Uudenkarheasta taloyhtiöstä oma koti
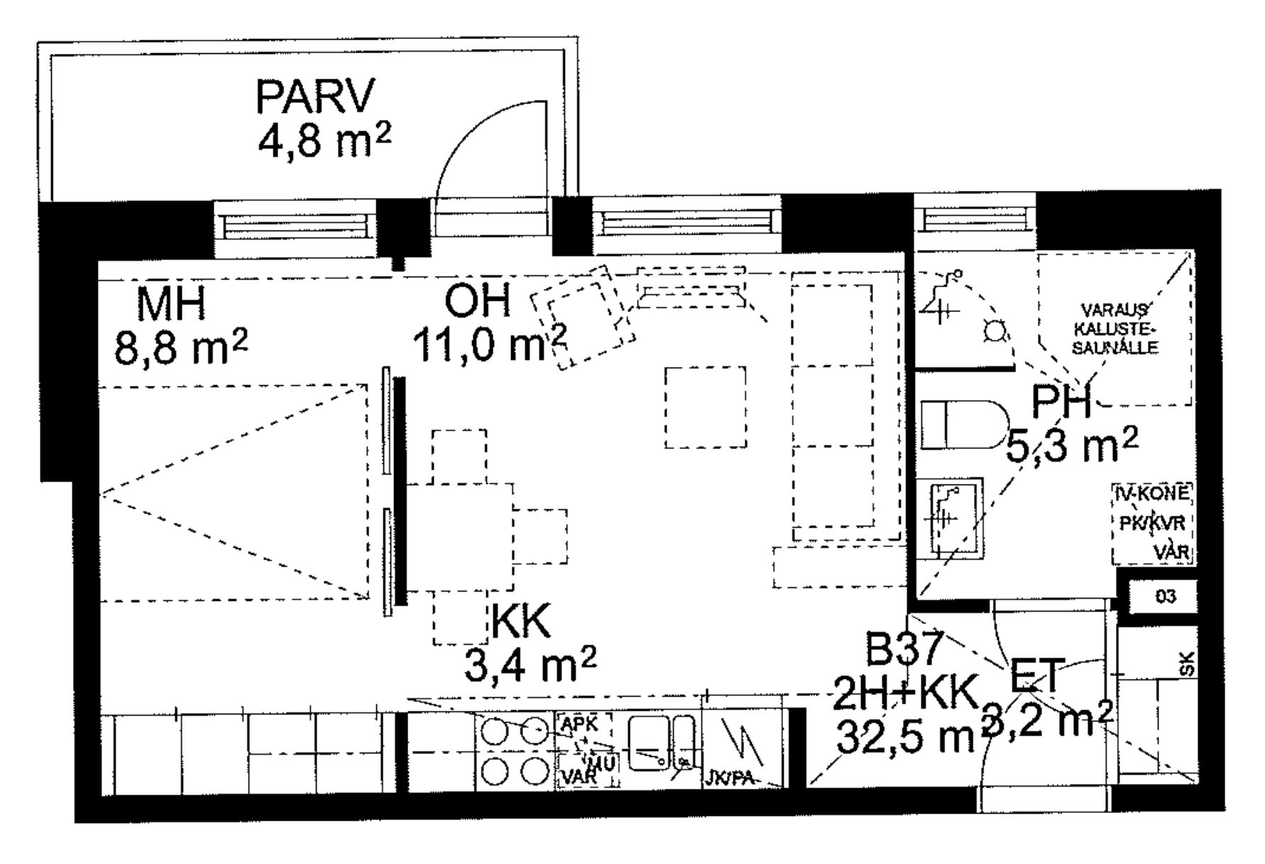
Arkea sujuvoittavat keittotilan laadukkaat kodinkoneet, joihin lukeutuvat liesitaso ja uuni, astianpesukone sekä jääkaappipakastin. Laatoitetussa kylpyhuoneessa on liitäntä asukkaan omalle pyykinpesukoneelle.
Jokaiselle asunnolle kuuluu oma häkkivarasto ja yhteisessä käytössä ovat ulkoiluvälinevarasto, kuivaushuone sekä sauna. Taloyhtiö on liitetty kaukolämpöön ja talosta on suora kulkuyhteys lämpimään autohalliin.
Kysy autopaikkojen tarkempaa saatavuutta vuokraajalta.
Uudehkosta taloyhtiöstä oma koti
Arkea sujuvoittavat keittotilan laadukkaat kodinkoneet, joihin lukeutuvat liesitaso ja uuni, astianpesukone, integroitu mikro sekä jääkaappipakastin. Laatoitetussa kylpyhuoneessa on liitäntä asukkaan omalle pyykinpesukoneelle.
Jokaiselle asunnolle kuuluu oma häkkivarasto ja yhteisessä käytössä ovat ulkoiluvälinevarasto, kuivaushuone sekä sauna. Taloyhtiö on liitetty kaukolämpöön ja talosta on suora kulkuyhteys lämpimään autohalliin.
Kysy autopaikkojen tarkempaa saatavuutta vuokraajalta.
Vuokrasopimuksen ehdot
Vuokrasopimus on toistaiseksi voimassa oleva, yhden kalenterikuukauden irtisanomisajalla. Sopimuksen ensimmäinen mahdollinen päättymispäivä on kuuden (6) kuukauden kuluttua. Edellytämme puhtaita luottotietoja. Laaja kotivakuutus vastuuosineen vaaditaan. Asukas tekee oman sähkösopimuksen valitsemansa sähköyhtiön kanssa.
Olisiko tässä uusi kotisi?
Varaa asunto itsellesi klikkaamalla "Vuokraa asunto" ja muuta uuteen huolettomaan kotiisi! Varausta tehdessä voit kertoa meille, haluatko käydä asuntonäytöllä ennen vuokrasopimuksen allekirjoittamista. Voit vuokrata asunnon myös videoesittelyllä tai kokonaan ilman näyttöä. Olemme sinuun yhteydessä mahdollisimman pian varauksesi vastaanottamisen jälkeen.
Miten voin auttaa?

Muita sinulle sopivia kohteita
Etkö löytänyt etsimääsi?










