Etu-Lyötyssä kaikki palvelut kävelyetäisyydellä
Nauti huolettomasta vuokra-asumisesta Etu-Lyötyn suositussa asuinkorttelissa! Etu-Lyötty on idyllinen asuinalue vajaan puolen kilometrin päässä Oulun keskustan palveluista.
Joo Kotien asukkaana nautit myös näistä eduista:
- Vuokravakuus 0 €
- Lemmikit tervetulleita
- Jooppi-asukassovelluksella hoidat helposti kaikki kotisi asiat
- Joo-tiimi aina apunasi
Asunto Oy Oulun Figuuri on Oulun Etu-Lyöttyyn vuonna 2018 valmistunut kerrostalo, joka sijaitsee vain vajaa kilometrin päässä Oulun keskustan sykkeestä. Läheltäsi löytyy kuntosaleja, ruokakauppoja ja keskustan palvelut ovat käden ulottuvilla. Myös citybussi kulkee ihan talon nurkalta. Taloyhtiön alakerrassa toimii päiväkoti ja alue on vehreää ja rauhallista, vaikka keskustan tuntumassa sijaitseekin.
Kompakteja kaupunkikoteja
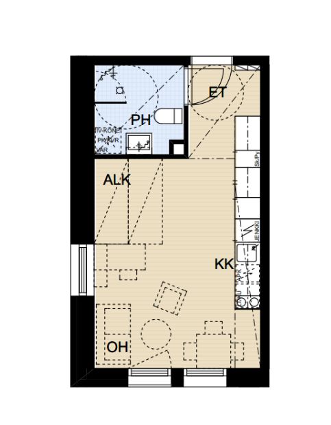
Keittotilassa uuni ja liesitaso, jääpakastinkaappi-pakastin ja astianpesukone. Kylpyhuoneessa on liitäntämahdollisuus pyykinpesukoneelle. Asunnossa on ranskalainen parveke.
Kuvat saman taloyhtiön eripohjaisesta asunnosta.
Keskustan tuntumasta oma koti
Jokaiselle asunnolle kuuluu oma häkkivarasto ja yhteisessä käytössä ulkoiluvälinevarasto taloyhtiön kellaritiloissa. Taloyhtiö on liitetty kaukolämpöön ja talosta on suora kulkuyhteys lämpimään autohalliin.
Autopaikka hallista 80,00 € / kk. Kysy tarkempaa saatavuutta vuokraajalta.
Vuokrasopimuksen ehdot
Vuokrasopimus on toistaiseksi voimassa oleva, yhden kalenterikuukauden irtisanomisajalla. Sopimuksen ensimmäinen mahdollinen päättymispäivä on kahdentoista (12) kuukauden kuluttua. Edellytämme puhtaita luottotietoja. Laaja kotivakuutus vastuuosineen vaaditaan. Asukas tekee oman sähkösopimuksen valitsemansa sähköyhtiön kanssa.
Olisiko tässä uusi kotisi?
Varaa asunto itsellesi klikkaamalla "Vuokraa asunto" ja muuta uuteen huolettomaan kotiisi! Varausta tehdessä voit kertoa meille, haluatko käydä asuntonäytöllä ennen vuokrasopimuksen allekirjoittamista. Voit vuokrata asunnon myös videoesittelyllä tai kokonaan ilman näyttöä. Olemme sinuun yhteydessä mahdollisimman pian varauksesi vastaanottamisen jälkeen.
Miten voin auttaa?

Muita sinulle sopivia kohteita
Etkö löytänyt etsimääsi?











