Etusivu > 
nokia > 
88

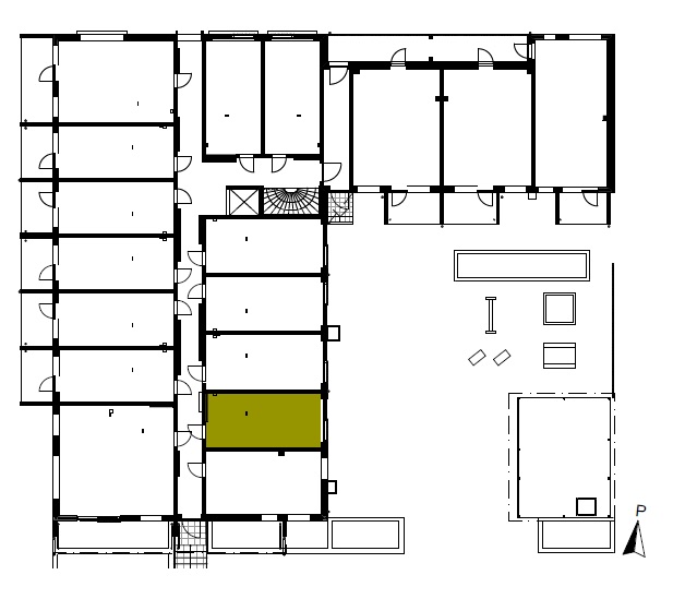
Välikatu 13 A 9

1h+k+kph+r.parv
Vuokra
529.38 €/kk
Pinta-ala
25 m²
Kerros
2/9
Rakennusvuosi
2020
Vapautuu
Vuokrattu
Vakuus
0 €
Valoisa yksiö fiksulla tilaratkaisulla Nokian Pirkkalaistorin kulmalla

Huoletonta vuokra-asumista Nokialla, Pirkkalaistorin kupeessa

Nauti huolettomasta vuokra-asumisesta Nokian keskustassa, kattavien palveluiden äärellä.

  • Vuokravakuus 0 €
  • Lemmikit tervetulleita
  • Jooppi-asukassovelluksella hoidat helposti kaikki kotisi asiat
  • Kotimestari ja muu Joo-tiimi ovat aina apunasi

Kaikki arkiset palvelut löytyvät aivan nurkan takaa, tien toisella puolella on Nokian kirjasto- ja kulttuuritalo Virta. Talon edessä olevalta bussipysäkiltä Nysse kuljettaa kätevästi Tampereen keskustaan, kuten myös lähijuna. Rautatieasemalle kävelet noin kymmenessä minuutissa.

Huolella valitut pintamateriaalit luovat kauniin pohjan sisustukselle

Asunnossa on lämminsävyiset laminaattilattiat ja valkoisiksi maalatut seinät. Säilytystilaa löytyy eteisestä sekä käytännöllisesti suunnitellusta kylpyhuoneesta.

Arkea sujuvoittavat keittotilan laadukkaat kodinkoneet, joihin lukeutuvat keraaminen liesitaso, erillisuuni, astianpesukone ja jääkaappi pakastinlokerolla. Laatoitetussa kylpyhuoneessa on liitäntä asukkaan omalle pyykinpesukoneelle. Kylpyhuoneessa on varaus myös pesutornille. Vesikiertoinen, seinäpaneelista ohjattava maalämpöön liitetty lattialämmitys pitää jalat lämpiminä myös talvisin. Asunnossa ranskalainen parveke.

Taloyhtiössä monipuoliset palvelut

  • Taloyhtiösauna
  • Kerhohuone
  • Ulkoiluvälinevarasto
  • Irtaimistovarastot
  • DNA:n taloyhtiön laajakaista
  • Taloyhtiö on esteetön

Taloyhtiössä on pysäköintihalli. Kysy autopaikkojen saatavuus erikseen taloyhtiön isännöitsijältä.

Vuokrasopimuksen ehdot

Vuokrasopimus on toistaiseksi voimassa oleva. Sopimuksen ensimmäinen mahdollinen päättymispäivä on kuuden (6) kuukauden kuluttua. Edellytämme puhtaita luottotietoja. Laaja kotivakuutus vastuuosineen vaaditaan. Asukas tekee oman sähkösopimuksen valitsemansa sähköyhtiön kanssa.

Olisiko tässä uusi kotisi?

Varaa asunto itsellesi klikkaamalla “Vuokraa asunto“ ja muuta uuteen huolettomaan kotiisi! Varausta tehdessä voit kertoa meille, haluatko käydä asuntonäytöllä ennen vuokrasopimuksen allekirjoittamista. Voit vuokrata asunnon myös videoesittelyllä tai kokonaan ilman näyttöä. Olemme sinuun yhteydessä mahdollisimman pian varauksesi vastaanottamisen jälkeen.


Taloyhtiössä monipuoliset palvelut


  • Taloyhtiösauna
  • Kerhohuone
  • Ulkoiluvälinevarasto
  • Irtaimistovarastot
  • DNA:n taloyhtiön laajakaista
  • Taloyhtiö on esteetön


Taloyhtiössä on pysäköintihalli. Kysy autopaikkojen saatavuus erikseen taloyhtiön isännöitsijältä.


Vuokrasopimuksen ehdot


Vuokrasopimus on toistaiseksi voimassa oleva. Sopimuksen ensimmäinen mahdollinen päättymispäivä on kuuden (6) kuukauden kuluttua. Edellytämme puhtaita luottotietoja. Laaja kotivakuutus vastuuosineen vaaditaan. Asukas tekee oman sähkösopimuksen valitsemansa sähköyhtiön kanssa.


Olisiko tässä uusi kotisi?


Varaa asunto itsellesi klikkaamalla "Vuokraa asunto" ja muuta uuteen huolettomaan kotiisi! Varausta tehdessä voit kertoa meille, haluatko käydä asuntonäytöllä ennen vuokrasopimuksen allekirjoittamista. Voit vuokrata asunnon myös videoesittelyllä tai kokonaan ilman näyttöä. Olemme sinuun yhteydessä mahdollisimman pian varauksesi vastaanottamisen jälkeen.

Miten voin auttaa?

Jos haluat nähdä asunnon, varaa se ensin, niin otamme sinuun yhteyttä näytöstä.
Fia
+358 40 0213 632(Arkisin klo 9-16)

As Oy Nokian Pirkkalaistorin Piccolo

image

Etkö löytänyt etsimääsi?

Ota meihin yhteyttä ja vuokraustiimimme pitää huolen, että pääset uuteen kotiin mahdollisimman nopeasti ja vaivattomasti.
image