Etusivu > 
a-51

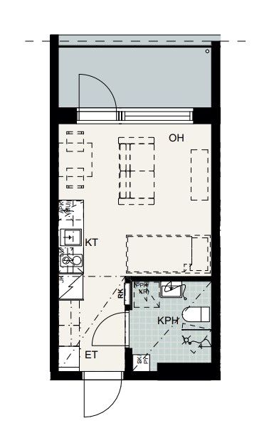
Mannakorventie 9 A 51

1h+k+kph
Vuokra
519 €/kk
Pinta-ala
21,5 m²
Kerros
2/5
Rakennusvuosi
2023
Vapautuu
Vuokrattu
Vakuus
0 €
Moderni yksiö Linkosuonpuiston rauhalliselta asuinalueelta

Huoletonta vuokra-asumista vehreällä ja rauhallisella asuinalueella

Nauti huolettomasta vuokra-asumisesta Linkosuonpuiston alueella aivan Tampereen rajan vieressä. Tässä kompaktissa yksiössä nautit monipuolisista palveluista ja hyvistä liikenneyhteyksistä taloyhtiön läheisyydessä. Linkosuon Leipomon tehtaanmyymälä on kivenheiton päässä ja ruokakaupatkin löytyvät lähistöltä. Lemmikit ovat tervetulleita kaikkiin Joo Koteihin. Joo-tiimi on apunasi koko vuokralla asumisesi ajan.

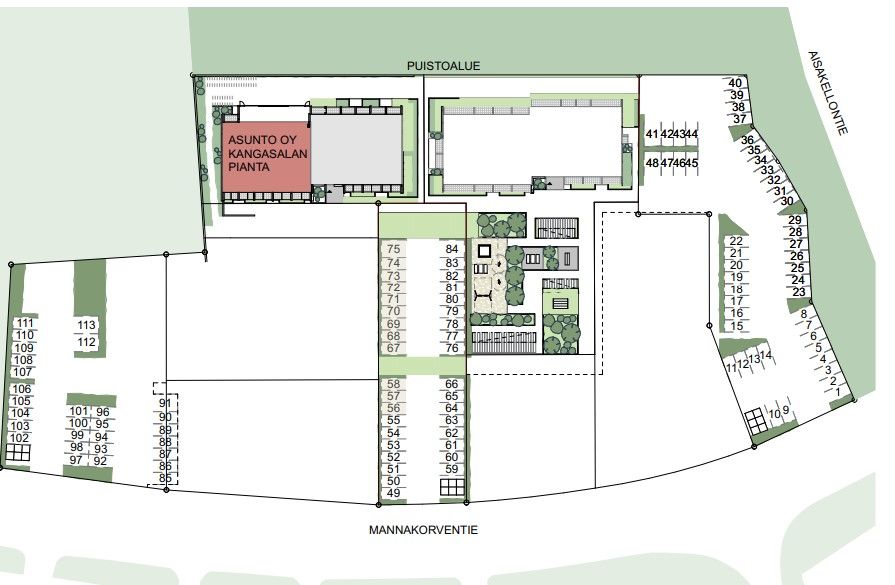
Linkosuonpuisto sijaitsee aivan Tampereen rajan tuntumassa, Vehmaisten, Holvastin ja Kaukajärven monipuolisen palvelukattauksen läheisyydessä. Omalla autolla Kangasalan keskustan palvelut ovat vain 10 minuutin päässä ja Tampereen keskustaan ajat 15 minuutissa. Sujuvien bussiyhteyksien ansiosta pääset liikkumaan kätevästi myös ilman omaa autoa. Koiranomistajille ja lenkkeilijöille löytyy paljon hyviä ulkoilumaastoja.

Kotoisat ja lämminhenkiset sisustusvalinnat

Vuonna 2022 valmistuneessa kerrostalokodissa on maalatut seinät ja lattiat parkettia. Hyvin varustellusta modernista keittiöstä löytyy astianpesukone, jääkaappi pakastinlokerolla sekä hella. Huoneistossa oma lasitettu parveke sekä lattiaan asti ulottuvat kauniit ikkunat.

Laatoitetussa kylpyhuoneessa on tila sekä liitäntä pyykinpesukoneelle. Asunnon lattialämmitys pitää jalat lämpiminä myös talviaikaan. Asunnossa hyvin säilytystilaa keittiön kaapistoissa, eteisen säilytyskaapeissa sekä huoneistokohtaisessa häkkivarastossa.

Taloyhtiössä toimivat tilat: huoneistokohtaiset häkkivarastot ja urheiluvälinevarasto

Ulkoiluvälinevarasto ja lastenvaunuvarasto sijaitsevat ensimmäisessä kerroksessa ja huoneistokohtaiset lämmitetyt häkkivarastot löytyvät väestönsuoja- ja ullakkotiloista.

Vuokrasopimuksen ehdot

Vuokrasopimus on toistaiseksi voimassa oleva, yhden kalenterikuukauden irtisanomisajalla. Edellytämme puhtaita luottotietoja. Laaja kotivakuutus vastuuosineen vaaditaan. Asukas tekee oman sähkösopimuksen valitsemansa sähköyhtiön kanssa.

Olisiko tässä uusi kotisi?

Olisiko tässä uusi kotisi? Varaa asunto itsellesi klikkaamalla "Vuokraa asunto" ja muuta uuteen huolettomaan kotiisi! Varausta tehdessä voit kertoa meille, haluatko käydä asuntonäytöllä ennen vuokrasopimuksen allekirjoittamista. Olemme sinuun yhteydessä mahdollisimman pian varauksesi vastaanottamisen jälkeen.

image

Miten voin auttaa?

Jos haluat nähdä asunnon, varaa se ensin, niin otamme sinuun yhteyttä näytöstä.
Sanna
+358400213067(Arkisin klo 9-16)

As Oy Kangasalan Pianta

image

Etkö löytänyt etsimääsi?

Ota meihin yhteyttä ja vuokraustiimimme pitää huolen, että pääset uuteen kotiin mahdollisimman nopeasti ja vaivattomasti.
image