Urbaani Saunalahti, mutta silti kävelymatkan päässä mereltä
Nauti huolettomasta vuokra-asumisesta urbaanin Saunalahden viihtyisässä taloyhtiössä, joka sijaitsee lähellä kattavia palveluja sekä hyvien liikenneyhteyksien varrella.
Joo Kotien asukkaana nautit myös näistä eduista:
- Vuokravakuus 0 €
- Lemmikit tervetulleita
- Jooppi-asukassovelluksella hoidat helposti kaikki kotisi asiat
- Joo-tiimi aina apunasi
Espoon Saunalahti on kasvanut isohkoksi ja halutuksi asuinalueeksi Espoossa viime vuosien aikana, eikä ihme. Meri on noin kilometrin päässä ja hyvät palvelut alueella takaavat oivan asuinpaikan kaikenikäisille ihmisille. Lähellä kulkevan länsiväylän kautta kurvaat vaikka Iso-Omenan ostoskeskukseen alle kymmenessä minuutissa. Kivenlahden metroasemakin on noin 1.5 km päässä. Lähin kauppa, hiljattain uudistunut S-market oheispalveluineen sijaitsee noin 700 metrin päässä. Kaupan vieressä sijaitsee myös koulu. Lähin päiväkoti löytyy lähes talon takaa, noin 100 metrin päässä.
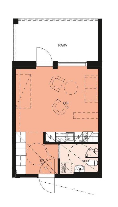
Espoon Välke on vuonna 2019 valmistunut neljäkerroksinen hissillinen kerrostalo, jossa meiltä löytyy yksiöitä sekä kaksioita. Asuntojen koot vaihtelevat kokoluokassa 31–47,5m2.
Modernia kerrostaloasumista
Tässä kodissa on ihanat suuret ikkunat, helppohoitoinen laminaatti ja valkoisiksi maalatut seinät. Säilytystilaa löytyy keittiöstä sekä eteisen komeroista. Arkea sujuvoittavat keittotilan laadukkaat kodinkoneet, joihin lukeutuvat keraaminen liesitaso ja erillinen kalusteuuni, astianpesukone ja jääkaappi pakastinlokerolla. Kylpyhuoneessa on paikka pyykinpesukoneelle. Huoneistoissa on vesikiertoinen lattialämmitys. Lasitettu parveke lisää asumismukavuutta niin kesäisin kuin talvisinkin.
Taloyhtiön monipuoliset palvelut asukkaiden käytössä
- Taloyhtiön sauna
- Pesula
- 10 M Elisan taloyhtiön laajakaista
- Ulkoiluvälinevarasto
- Lämmin irtaimistovarasto
- Hallipaikkoja vuokrattavissa saatavuuden mukaan suoraan talon alta
Taloyhtiön saunaosastolla nautit löylyn lämmöstä! Varaa itsellesi oma vuoro.
Pesutuvassa peset huolettomasti pyykit, eikä sinun tarvitse välttämättä hankkia omaa pyykinpesukonetta.
Mediamaksuun sisältyy taloyhtiölaajakaista 10M.
Asuntokohtainen irtaimistovarasto sekä kaikille talon asukkaille käytössä oleva ulkoiluvälinevarasto.
Lämmitystolpallisia autohallipaikkoja on mahdollisuus vuokrata saatavuuden mukaan. Kysy autopaikkojen saatavuus erikseen asunnon vuokraajalta.
Vuokrasopimuksen ehdot
Vuokrasopimus on toistaiseksi voimassa oleva. Vuokrasopimuksen ensimmäinen mahdollinen päättymispäivä on kahdentoista (12) kuukauden kuluttua. Edellytämme puhtaita luottotietoja. Laaja kotivakuutus vastuuosineen vaaditaan. Asukas tekee oman sähkösopimuksen valitsemansa sähköyhtiön kanssa.
Olisiko tässä uusi kotisi?
Varaa asunto itsellesi klikkaamalla "Vuokraa asunto" ja muuta uuteen huolettomaan kotiisi! Varausta tehdessä voit kertoa meille, haluatko käydä asuntonäytöllä ennen vuokrasopimuksen allekirjoittamista. Voit vuokrata asunnon myös videoesittelyllä tai kokonaan ilman näyttöä. Olemme sinuun yhteydessä mahdollisimman pian varauksesi vastaanottamisen jälkeen.
Miten voin auttaa?

Muita sinulle sopivia kohteita
Etkö löytänyt etsimääsi?



















