Huoletonta vuokra-asumista Espoon keskuksen palveluiden ääreltä
Tässä modernissa asunnossa ilahduttaa laadukas varustelu, järkevä pohjaratkaisu sekä taloyhtiön monipuoliset palvelut. Asunto sijaitsee Espoon sydämessä, aivan palveluiden äärellä!
Joo Kotien asukkaana nautit myös näistä eduista:
- Vuokravakuus 0 €
- Lemmikit tervetulleita
- Jooppi-asukassovelluksella hoidat helposti kaikki kotisi asiat
- Joo-tiimi aina apunasi
Nauti huolettomasta vuokra-asumisesta Espoon keskuksen tuntumassa. Sujuvien bussi- sekä junayhteyksien ansiosta pääset liikkumaan kätevästi myös ilman omaa autoa. Koiranomistajille ja lenkkeilijöille löytyy paljon hyviä ulkoilumaastoja. Espoon keskuksen runsaat palvelut, koulut, kuntosalit, kirjasto ja uimahalli ovat aivan kävelyetäisyydellä.
Vuonna 2018 valmistuneeseen Espoon Fortunan taloyhtiöön kuuluu neljä kerrostaloa, joista korkein on viisikerroksinen. Vaihtoehtoina löytyy 28,5-54m2 kokoisia asuntoja yksiöistä kolmioihin.
Modernit ja valoisat sisustusvalinnat
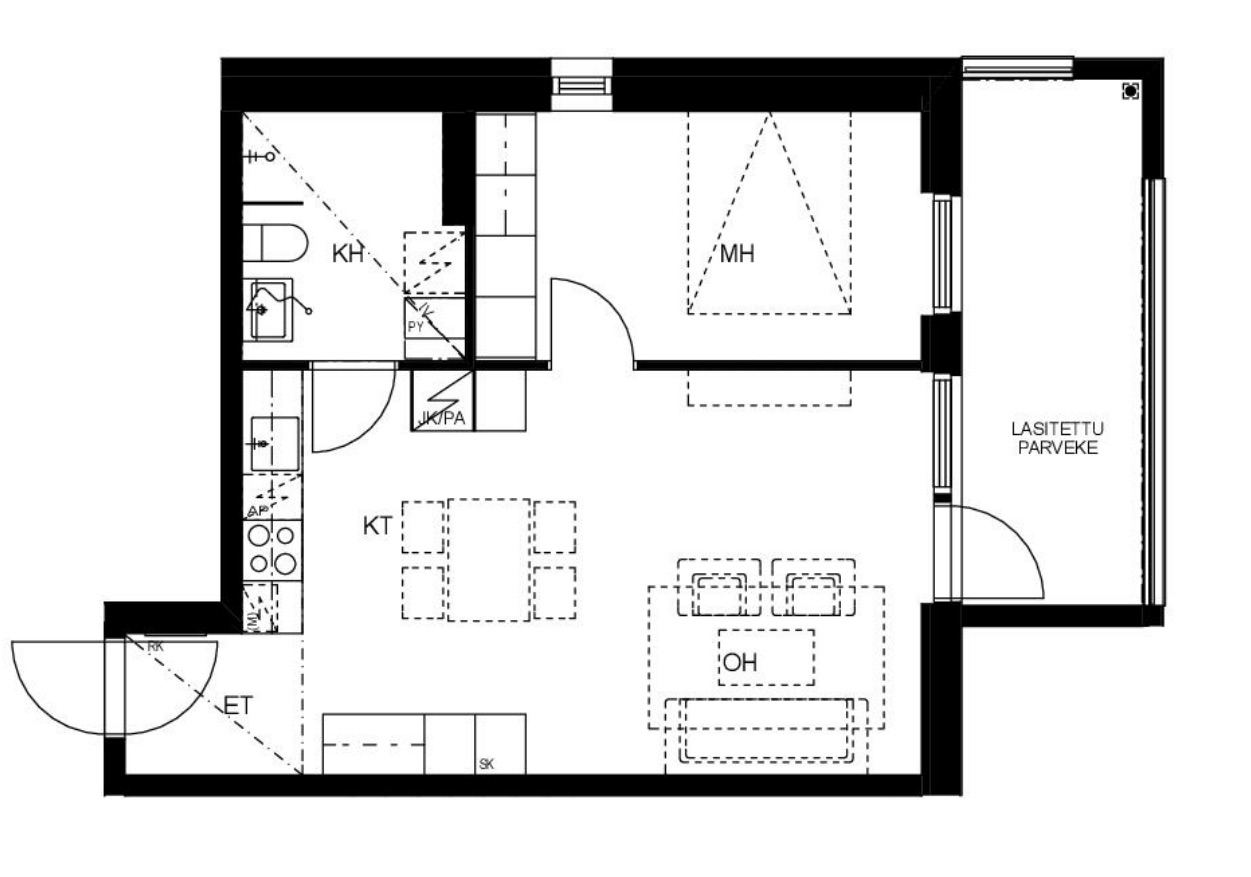
Huom. Asunnon kuvat saman taloyhtiön peilikuvallisesta asunnosta. Pohjakuva vastaa asuntoa.
Tässä kodissa on ihanat suuret ikkunat, helppohoitoinen laminaatti ja valkoisiksi maalatut seinät. Säilytystilaa löytyy keittiöstä, eteisen komeroista sekä makuuhuoneesta. Asunnossa iso lasitettu parveke.
Arkea sujuvoittavat keittotilan laadukkaat kodinkoneet, joihin lukeutuvat keraaminen liesitaso ja erillinen kalusteuuni, astianpesukone sekä jääkaappi/pakastin. Kylpyhuoneessa on paikka pyykinpesukoneelle. Huoneistoissa lämmitys on kaukolämmöllä toteutettu vesikiertoinen lattialämmitys.
Taloyhtiössä monipuoliset palvelut: rentoudu taloyhtiön saunassa!
- Saunaosasto
- 10M laajakaista
- Ulkoiluvälinevarastot
Taloyhtiön saunassa nautit löylyn lämmöstä. Varaa itsellesi oma viikoittainen vuoro.
Mediamaksuun sisältyy 10M taloyhtiön laajakaista.
Taloyhtiön ulkoiluväline varastossa säilytät huolettomasti esim. polkupyörää.
Vuokrasopimuksen ehdot
Vuokrasopimus on toistaiseksi voimassa oleva. Sopimuksen ensimmäinen mahdollinen päättymispäivä on kahdentoista (12) kuukauden kuluttua. Edellytämme puhtaita luottotietoja ja tarkistamme vuokranmaksukyvyn. Laaja kotivakuutus vastuuosineen vaaditaan. Asukas tekee oman sähkösopimuksen valitsemansa sähköyhtiön kanssa.
Olisiko tässä uusi kotisi?
Varaa asunto itsellesi klikkaamalla "Vuokraa asunto" ja muuta uuteen huolettomaan kotiisi! Varausta tehdessä voit kertoa meille, haluatko käydä asuntonäytöllä ennen vuokrasopimuksen allekirjoittamista. Voit vuokrata asunnon myös videoesittelyllä tai kokonaan ilman näyttöä. Olemme sinuun yhteydessä mahdollisimman pian varauksesi vastaanottamisen jälkeen.
Miten voin auttaa?

Muita sinulle sopivia kohteita
Etkö löytänyt etsimääsi?




















