Huoletonta vuokra-asumista Espoon rauhallisella Bembölen alueella
Tässä läpitalon valoisassa kaksiossa ilahduttavat laadukas varustelu sekä sen rauhallinen sijaitsi Bembölen metsänreunustamalla alueella.
Joo Kotien asukkaana nautit myös näistä eduista:
- Vuokravakuus 0 €
- Lemmikit tervetulleita
- Jooppi-asukassovelluksella hoidat helposti kaikki kotisi asiat
- Joo-tiimi aina apunasi
Asunnon välittömästä läheisyydestä lähtevät hyvät pellon- ja metsän ympäröivät lenkkipolut, joissa juokseminen taikka koirien ulkoiluttaminen on sitä parasta itseään. Taloyhtiön toinen reuna rajoittuu peltomaisemiin, mutta tämä ei tapahdu kulkuyhteyksien kustannuksella. Lähin bussipysäkki sijaitsee noin 300 metrin päässä, josta pääsee julkisella esimerkiksi Espoon Keskuksen palveluiden ja juna-aseman ääreen kymmenessä minuutissa. Myös Kehä III ja Turunväylä ovat lähellä, joten autoilevallekin sijainti on erinomainen. Lähin ruokakauppa löytyy reilun kilometrin päästä.
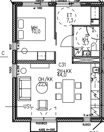
Espoon Kuninkaantien Viljatullissa on asuntoja luhtitalon kahdessa kerroksessa. Asuntovaihtoehtoina ovat joko yksiö tai kaksio ja niiden koot vaihtelevat 28-44 m2.
Kivat pintamateriaalit luovat kauniin pohjan sisustukselle
Huom. Asunnon kuvat ovat saman taloyhtiön toisesta peilikuvallisesta asunnosta. Pohjakuva on myös peilikuvallisesta asunnosta.
Tässä valoisassa asunnossa on upeat isot ikkunat sekä tyylikäs keittiö moderneilla integroiduilla kodinkoneilla, joihin kuuluvat induktiokeittotaso, yhdistelmäuuni mikroaaltouunitoiminnolla, jääkaappi, pakastin sekä astianpesukone. Kylpyhuoneessa on tilavaraus pyykinpesukoneelle. Lämmityksestä vastaa vesikiertoinen lattialämmitys, joka antaakin enemmän valinnanvaraa sisustamiseen, sillä patterit eivät ole viemässä tilaa. Asunnolla on oma pieni parveke ja parvekkeen ovessa on tuuletusasento mahdollisuus. Ikkunoissa ovat vedettävät kaihtimet, joten valon tulvaa pystyt säätelemään mieluisaksi.
Taloyhtiössä perinteiset palvelut autopaikasta laajakaistaan
- Grillikatos
- 10M Elisan laajakaista
- Autopaikka
- Irtaimistovarasto
- Polkupyörävarasto
Taloyhtiöllä on oma grillikatosalue kaikkien asukkaiden käytössä. Pihalta löytyy myös perheen pienimille pieni leikkialue.
Taloyhtiön 10M laajakaista sisältyy 10€ mediamaksuun.
Autopaikkoja on mahdollista vuokrata saatavuuden mukaan. Kysy vuokraajalta ajantasainen tilanne.
Jokaiselle asunnolle kuuluu irtaimistovarasto. Taloyhtiön pihalla on kaksi erillistä pyörävarastoa.
Vuokrasopimuksen ehdot
Vuokrasopimus on toistaiseksi voimassa oleva. Vuokrasopimuksen ensimmäinen mahdollinen päättymispäivä on kahdentoista (12) kuukauden kuluttua. Edellytämme puhtaita luottotietoja ja tarkistamme vuokranmaksukyvyn. Laaja kotivakuutus vastuuosineen vaaditaan. Asukas tekee oman sähkösopimuksen valitsemansa sähköyhtiön kanssa.
Olisiko tässä uusi kotisi?
Varaa asunto itsellesi klikkaamalla "Vuokraa asunto" ja muuta uuteen huolettomaan kotiisi! Varausta tehdessä voit kertoa meille, haluatko käydä asuntonäytöllä ennen vuokrasopimuksen allekirjoittamista. Olemme sinuun yhteydessä mahdollisimman pian varauksesi vastaanottamisen jälkeen.
Miten voin auttaa?

Muita sinulle sopivia kohteita
Etkö löytänyt etsimääsi?
























